omslagfoto

Appartement - Bouwnummer 56 (Bouwnr. 56), Amsterdam € 640.284,- v.o.n. Nieuw Inschrijven

Beschrijving

START VERKOOP HOUTSMA FASE 1 OP CRUQUIUSEILAND

49 APPARTEMENTEN EN 9 STADSWONINGEN
Verkoop gestart. Vanaf nu kun je je inschrijven op de favoriete woning(en). Inschrijven is mogelijk tot en met 17 november 12.00 uur via de projectwebsite.

HOUTSMA
Op Cruquiuseiland woon je stads én waterrijk. De komende jaren groeit hier een gevarieerd woonaanbod, met robuuste architectuur, groene binnenterreinen en veel aandacht voor comfort en duurzaamheid. Ben je op zoek naar nieuwbouw in Amsterdam met uitzicht op water, goede bereikbaarheid en een buurt die leeft? Dan is Cruquius iets voor jou. Een van de nieuwste projecten is Houtsma: een eigentijds woongebouw direct aan het Amsterdam-Rijnkanaal.

Houtsma is een nieuw woonproject aan de zuidzijde van het Oostelijk Havengebied, op een van de mooiste plekken van Cruquius. Hier komen 259 woningen, verdeeld over twee stedelijke carrés met intieme, groene binnenhoven. Het aanbod bestaat uit 116 koopwoningen en 143 huurappartementen, in een mix van comfortabele appartementen en ruime stadswoningen. In fase 1 komen 49 appartementen en 9 stadswoningen.

Wonen in Houtsma
Houtsma is ontworpen voor mensen die houden van de stad, maar ook van rust, ruimte en uitzicht. De twee woonblokken liggen rond groene binnentuinen en grenzen aan een autoluwe kade met zicht op het water. Of je nu kiest voor een appartement met balkon, een stadswoning met een eigen voordeur aan de kade of een woning met een bijzonder terras: overal voel je dezelfde kwaliteit en aandacht voor wooncomfort.

APPARTEMENTEN
De appartementen in Houtsma zijn licht, comfortabel en slim ingedeeld. Er is een breed aanbod, van driekamerappartementen met een praktische indeling tot royale woningen met een groot balkon of terras. De meeste appartementen hebben een buitenruimte op het zuiden en grote ramen die veel licht binnenlaten.
De woonoppervlaktes variëren van 63 tot 88 m², met prijzen vanaf € 552.720 v.o.n. (op basis van jaarlijkse canon). In de ondergelegen parkeergarage is voor de meeste koopappartementen een gereserveerde parkeerplaats beschikbaar, en iedere woning beschikt over een berging.
De appartementen worden zonder keuken opgeleverd, zodat je deze zelf kunt samenstellen. Via LEICHT Amsterdam kun je kiezen voor een hoogwaardige keuken met moderne apparatuur en een afwerking die past bij jouw woonstijl. De badkamers en toiletten zijn ingericht door Tortu, met kwalitatief sanitair en tegelwerk in rustige, natuurlijke tinten.

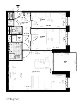
Type 23 - Balkon op het zuiden met schuin zicht op het water
Dit type 3-kamerappartement van circa 77 m2 komt voor op de 2e tot en met de 6e verdieping van Houtsma Zuid en op de 3e tot en met de 6e verdieping van Houtsma Noord. Vanuit het appartement kijk je schuin op het Amsterdam-Rijnkanaal. De living met open keuken is bijzonder ruim. Er is ruimte genoeg voor een lange eettafel en een fijne zithoek om te loungen. De keuken kun je naar eigen wens inrichten. Denk aan een rechte keuken, een hoekkeuken of een eilandkeuken. Aan de living en slaapkamers ligt het balkon met een schuifpui waardoor buiten en binnen in elkaar overvloeien. De zonligging op het zuiden is ideaal als je een zonaanbidder bent! Het appartement heeft twee slaap­kamers en is ingedeeld met een apart toilet en een badkamer met inloopdouche en brede wastafel. Verder zijn er twee bergkasten. In de ene kun je de wasmachine en wasdroger op elkaar plaatsen en in de andere staan de technische apparaten.
- Appartement van circa 77 m2
- Royale living met open keuken
- Balkon van circa 8 m2, op het zuiden
- Twee slaapkamers
- Apart toilet
- Badkamer met inloopdouche en wastafel
- Bergkast met aansluitingen voor de wasmachine en wasdroger
- Eigen parkeerplaats in de kelder
- Externe berging in de kelder of op de begane grond


Binnentuinen en binnenstraten
Tussen de twee woonblokken van Houtsma liggen groene binnentuinen die bewoners een moment van rust bieden midden in de stad. Hier is ruimte om buiten te zitten, elkaar te ontmoeten of gewoon even van het groen te genieten. De binnentuinen vormen een beschutte plek waar bewoners zich thuis voelen en kinderen veilig kunnen spelen.
De binnenstraten verbinden de gebouwen met de kade en het water. Ze zijn autoluw en ontworpen voor voetgangers en fietsers. Door de afwisseling van groen, baksteen en staal blijft het stoere karakter van Cruquius overal voelbaar, terwijl het geheel een prettige, menselijke schaal houdt.

Houtsma is onderdeel van Cruquius: een voormalig industriegebied aan de oostkant van Amsterdam, dat langzaam verandert in een levendig stadseiland. Hier woon je op historische grond. Waar ooit schepen en loodsen het straatbeeld bepaalden, groeit nu een buurt met bewoners, barista’s, ondernemers en jonge gezinnen.
Cruquius is een mix van rauw en hartelijk. Je drinkt koffie bij Millie Vanillie, haalt een versgetapt biertje bij Krux of schuift aan bij La Contessa; een Italiaanse keuken met uitzicht op Groenplaats Insulinde. De wijk is stoer, sociaal en verrassend veelzijdig. En dankzij de ligging aan het water is de natuur nooit ver weg. Een ideale plek om te wonen! Schrijf je snel in!

naar boven

Foto's

naar boven

Kenmerken

Vraagprijs € 640.284,-
Bouwvorm Nieuwbouw
Type bovenwoning, appartement
Woonoppervlakte 77 m²
Inhoud 231 m³
Bouwjaar 2028
Slaapkamers 2
Woonlagen 1
Servicekosten € 193,- p/m
Tuin geen tuin
Garage parkeerkelder, parkeerplaats
Schuur box
Verwarming vloerverwarming geheel
Energielabel A+
naar boven

Appartement - Bouwnummer 56 (Bouwnr. 56) bekijken

Bekijk onze vestigingen
Elke dag tot 23.00 uur bereikbaar
Overzichtskaart van Nederland met alle vestigingen aangegeven
Plan nu bezichtiging Inschrijven
naar boven

Plan je route

Plan route
Voeg deze woning toe aan uw TomTom
Bakkerij Bank Busstation Café Gemeentehuis
Luchthaven Metro Museum Park Parkeerplaats
Restaurant School Sportclub Supermarkt Tankstation
Taxistandplaats Treinstation Universiteit Winkelcentrum Ziekenhuis