omslagfoto

Appartement - bouwnummer 188 0ong, Amsterdam € 671.659,- v.o.n. Nieuw Contact

Beschrijving

VERKOOP HOUTSMA FASE 2 OP CRUQUIUSEILAND GESTART - DIGITAAL INSCHRIJVEN TOT 2 MAART 12.00 UUR

HOUTSMA
Op Cruquiuseiland woon je stads én waterrijk. De komende jaren groeit hier een gevarieerd woonaanbod, met robuuste architectuur, groene binnenterreinen en veel aandacht voor comfort en duurzaamheid. Ben je op zoek naar nieuwbouw in Amsterdam met uitzicht op water, goede bereikbaarheid en een buurt die leeft? Dan is Cruquius iets voor jou. Een van de nieuwste projecten is Houtsma: een eigentijds woongebouw direct aan het Amsterdam-Rijnkanaal.

Houtsma is een nieuw woonproject aan de zuidzijde van het Oostelijk Havengebied, op een van de mooiste plekken van Cruquius. Hier komen 259 woningen, verdeeld over twee stedelijke carrés met intieme, groene binnenhoven. Het aanbod bestaat uit 116 koopwoningen en 143 huurappartementen, in een mix van comfortabele appartementen en ruime stadswoningen. In fase 2 komen 42 appartementen, 7 specials en 9 stadswoningen.

Wonen in Houtsma
Houtsma is ontworpen voor mensen die houden van de stad, maar ook van rust, ruimte en uitzicht. De twee woonblokken liggen rond groene binnentuinen en grenzen aan een autoluwe kade met zicht op het water. Of je nu kiest voor een appartement met balkon, een stadswoning met een eigen voordeur aan de kade of een woning met een bijzonder terras: overal voel je dezelfde kwaliteit en aandacht voor wooncomfort.

APPARTEMENTEN
De appartementen in Houtsma zijn licht, comfortabel en slim ingedeeld. Er is een breed aanbod, van driekamerappartementen met een praktische indeling tot royale woningen met een groot balkon of terras. De meeste appartementen hebben een buitenruimte op het zuiden en grote ramen die veel licht binnenlaten.
De woonoppervlaktes variëren van 63 tot 88 m². In de ondergelegen parkeergarage is voor de meeste koopappartementen een gereserveerde parkeerplaats beschikbaar, en iedere woning beschikt over een prive berging.
De appartementen worden zonder keuken opgeleverd, zodat je deze zelf kunt samenstellen. Via LEICHT Amsterdam kun je kiezen voor een hoogwaardige keuken met moderne apparatuur en een afwerking die past bij jouw woonstijl. De badkamers en toiletten zijn ingericht door Tortu, met kwalitatief sanitair en tegelwerk in rustige, natuurlijke tinten.

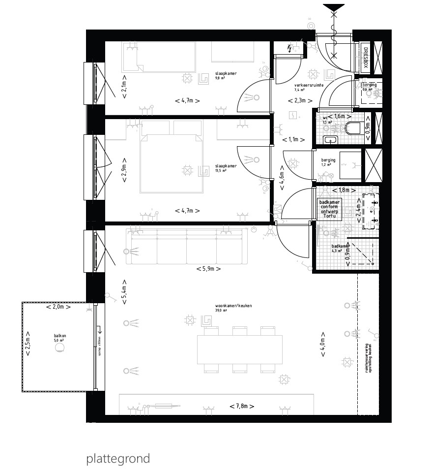
Omschrijving woningtype Type 15
Dit 3-kamerappartement van circa 83 m2 ligt op de 2e verdieping van Houtsma Noord. Wat direct in het oog springt is de living in een carré-vorm waar je alle ruimte hebt voor een fraaie zit- en eethoek. Aan de living ligt het balkon op het noorden. Hier geniet je van de rust die heerst in de groene binnentuin. Verder is het appartement praktisch en prettig ingedeeld met twee slaapkamers, een separaat toilet en een badkamer met inloopdouche en brede wastafel. In de ene bergkast kun je de wasmachine en wasdroger op elkaar plaatsen en in de andere kast staan de technische apparaten.
Koopsom € 671.659,-- v.o.n. (op basis van de jaarlijks afgekochte canon)

Binnentuinen en binnenstraten
Tussen de twee woonblokken van Houtsma liggen groene binnentuinen die bewoners een moment van rust bieden midden in de stad. Hier is ruimte om buiten te zitten, elkaar te ontmoeten of gewoon even van het groen te genieten. De binnentuinen vormen een beschutte plek waar bewoners zich thuis voelen en kinderen veilig kunnen spelen.
De binnenstraten verbinden de gebouwen met de kade en het water. Ze zijn autoluw en ontworpen voor voetgangers en fietsers. Door de afwisseling van groen, baksteen en staal blijft het stoere karakter van Cruquius overal voelbaar, terwijl het geheel een prettige, menselijke schaal houdt.

Houtsma is onderdeel van Cruquius: een voormalig industriegebied aan de oostkant van Amsterdam, dat langzaam verandert in een levendig stadseiland. Hier woon je op historische grond. Waar ooit schepen en loodsen het straatbeeld bepaalden, groeit nu een buurt met bewoners, barista’s, ondernemers en jonge gezinnen.
Cruquius is een mix van rauw en hartelijk. Je drinkt koffie bij Millie Vanillie, haalt een versgetapt biertje bij Krux of schuift aan bij La Contessa; een Italiaanse keuken met uitzicht op Groenplaats Insulinde. De wijk is stoer, sociaal en verrassend veelzijdig. En dankzij de ligging aan het water is de natuur nooit ver weg. Een ideale plek om te wonen! Schrijf je snel in!
naar boven

Foto's

naar boven

Kenmerken

Vraagprijs € 671.659,-
Bouwvorm Nieuwbouw
Type bovenwoning, appartement
Ligging aan water, in woonwijk
Woonoppervlakte 83 m²
Inhoud 249 m³
Bouwjaar 2028
Slaapkamers 2
Woonlagen 1
Servicekosten € 207,- p/m
Tuin geen tuin
Garage parkeerkelder, parkeerplaats
Schuur box
Verwarming vloerverwarming geheel
Energielabel A+
naar boven

Appartement - bouwnummer 188 0ong bekijken

Afspraak plannen?

Bekijk onze vestigingen
Elke dag tot 23.00 uur bereikbaar
Overzichtskaart van Nederland met alle vestigingen aangegeven
Plan nu bezichtiging Neem contact op
naar boven

Plan je route

Plan route
Voeg deze woning toe aan uw TomTom
Bakkerij Bank Busstation Café Gemeentehuis
Luchthaven Metro Museum Park Parkeerplaats
Restaurant School Sportclub Supermarkt Tankstation
Taxistandplaats Treinstation Universiteit Winkelcentrum Ziekenhuis