omslagfoto

Het Voorhuis (Bouwnr. 1), Amsterdam € 1.400.000,- v.o.n. Onder optie Inschrijven

Beschrijving

Neem contact op met de makelaar voor een informatief gesprek!

Aan de linkerzijde van het perceel ligt het voorhuis. Deze twee-onder-een kapwoningen hebben een statige stijl en zijn in zijn geheel opgetrokken uit metselwerk. De zogenaamde schoorsteen is een knipoog naar het verleden. De twee voorhuizen hebben een oppervlakte van circa 174 m² (g.o.). De ruime living met open keuken is door de vele plafondhoge ramen erg licht en biedt aan 3 zijden uitzicht.

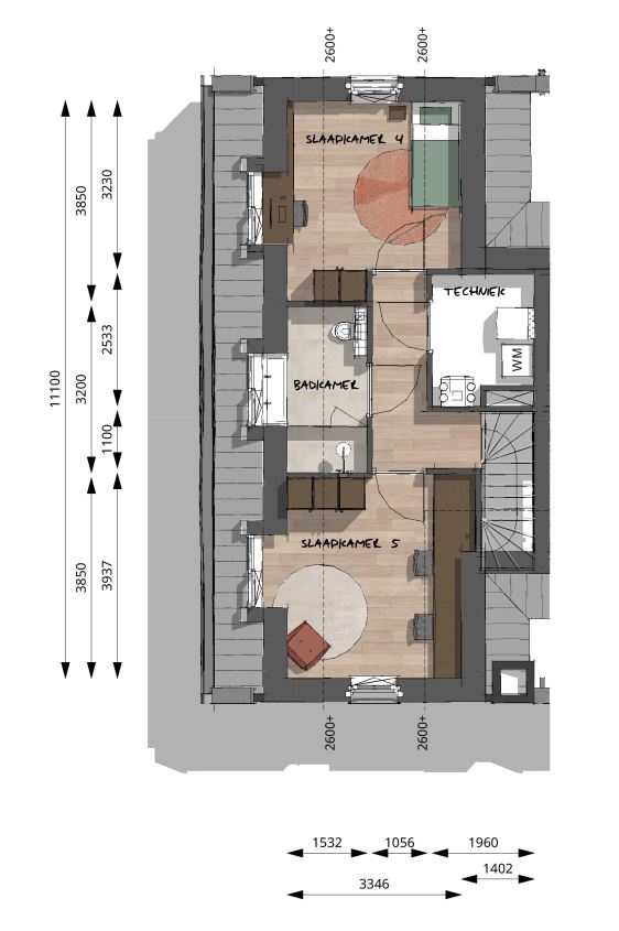
De eerste verdieping is voorzien van 3 slaapkamers, een badkamer en een separaat toilet. Op de 2e verdieping treffen we een 4e en 5e slaapkamer alsmede een mogelijkheid voor een 2e badkamer.

Het Voorhuis is gelegen op een groot perceel, aan het water, met voldoende ruimte om tuininrichting naar wens te kunnen creëren.

De architecten hebben zich voor Erf Meerzigt laten inspireren door het historische verleden van deze plek. Daar waar ooit de oude boerderij MEERZIGT heeft gestaan verrijzen straks 5 woningen waar vooral is gekeken naar het juiste materiaal gebruik, de luxe afwerking en een optimale indeling.

Bijzonderheden
- Twee-onder-een kapwoning
- Woonoppervlakte circa 174 m2
- Groot perceel van circa 555 m2
- Riante woonkeuken en grote woonkamer
- 5 slaapkamers en mogelijkheid voor 2 badkamers
- Ruime achtertuin met uitzicht op het water
- Parkeren op het erf
- Zeer duurzaam gebouwd
- Voorzien van een warmtepomp met vloerverwarming en koeling
- Koopsom €1.400.000,- v.o.n. exclusief erfpacht

Erfpacht
Tot en met 31 december 2032 bedraagt de jaarlijkse erfpachtcanon €11.810,- (fiscaal aftrekbaar). Overstappen naar eeuwigdurende erfpacht onder gunstige voorwaarden vanaf 31 december 2032 is mogelijk.

Aan de hand van een calculatie van een erfpachtspecialist, conform de modellen van de gemeente Amsterdam, zal de eeuwigdurende afkoopsom vanaf 31 december 2032 circa € 92.327,-- bedragen of een jaarlijkse erfpachtcanon op circa € 4.141,--. Uiteraard informeren wij u hier graag verder over.

‘’Deze informatie is door ons met de nodige zorgvuldigheid samengesteld. Onzerzijds wordt echter geen enkele aansprakelijkheid aanvaard voor enige onvolledigheid, onjuistheid of anderszins, dan wel de gevolgen daarvan. Alle opgegeven maten en oppervlakten zijn indicatief."
naar boven

Foto's

naar boven

Kenmerken

Vraagprijs € 1.400.000,-
Bouwvorm Nieuwbouw
Type 2-onder-1-kapwoning, villa
Ligging aan water, beschutte ligging
Woonoppervlakte 174 m²
Inhoud 999 m³
Bouwjaar 2026
Slaapkamers 5
Tuin tuin rondom
Garage geen garage
Verwarming vloerverwarming geheel, warmtepomp
naar boven

Het Voorhuis (Bouwnr. 1) bekijken

Bekijk onze vestigingen
Elke dag tot 23.00 uur bereikbaar
Overzichtskaart van Nederland met alle vestigingen aangegeven
Plan nu bezichtiging Inschrijven
naar boven

Plan je route

Plan route
Voeg deze woning toe aan uw TomTom
Bakkerij Bank Busstation Café Gemeentehuis
Luchthaven Metro Museum Park Parkeerplaats
Restaurant School Sportclub Supermarkt Tankstation
Taxistandplaats Treinstation Universiteit Winkelcentrum Ziekenhuis