omslagfoto

Special - Bouwnummer 27 (Bouwnr. 27), Amsterdam € 889.322,- v.o.n. Verkocht onder voorbehoud Contact

Beschrijving

START VERKOOP HOUTSMA FASE 1 OP CRUQUIUSEILAND

49 APPARTEMENTEN EN 9 STADSWONINGEN
Verkoop gestart.

HOUTSMA
Op Cruquiuseiland woon je stads én waterrijk. De komende jaren groeit hier een gevarieerd woonaanbod, met robuuste architectuur, groene binnenterreinen en veel aandacht voor comfort en duurzaamheid. Ben je op zoek naar nieuwbouw in Amsterdam met uitzicht op water, goede bereikbaarheid en een buurt die leeft? Dan is Cruquius iets voor jou. Een van de nieuwste projecten is Houtsma: een eigentijds woongebouw direct aan het Amsterdam-Rijnkanaal.

Houtsma is een nieuw woonproject aan de zuidzijde van het Oostelijk Havengebied, op een van de mooiste plekken van Cruquius. Hier komen 259 woningen, verdeeld over twee stedelijke carrés met intieme, groene binnenhoven. Het aanbod bestaat uit 116 koopwoningen en 143 huurappartementen, in een mix van comfortabele appartementen en ruime stadswoningen. In fase 1 komen 49 appartementen en 9 stadswoningen.

Wonen in Houtsma
Houtsma is ontworpen voor mensen die houden van de stad, maar ook van rust, ruimte en uitzicht. De twee woonblokken liggen rond groene binnentuinen en grenzen aan een autoluwe kade met zicht op het water. Of je nu kiest voor een appartement met balkon, een stadswoning met een eigen voordeur aan de kade of een woning met een bijzonder terras: overal voel je dezelfde kwaliteit en aandacht voor wooncomfort.

SPECIALS
Binnen Houtsma vind je ook woningen met nét dat beetje extra. Denk aan hoekappartementen met grote terrassen, woningen met meerdere buitenruimtes of exclusieve dakterrassen met uitzicht op het kanaal. Deze specials onderscheiden zich door hun ligging, indeling en afwerking.
De specials variëren van 85 tot 158 m² en hebben drie of vier kamers. De prijzen starten vanaf € 757.477 v.o.n. (op basis van jaarlijkse canon). Net als de andere woningen worden ze zonder keuken opgeleverd, zodat je deze volledig naar eigen wens kunt samenstellen.
Via LEICHT Amsterdam kun je kiezen uit hoogwaardige materialen en moderne apparatuur. De badkamers en toiletten worden ingericht door Tortu, met oog voor kwaliteit, detail en een rustige, natuurlijke uitstraling.

Type 52 - Uniek appartement met royale living én woonkeuken
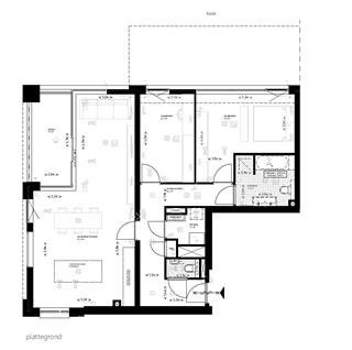
Deze stadswoning, met een woon­oppervlakte van maar liefst 128 m2, ligt op de hoek van Houtsma Zuid. De woning heeft een eigen entree aan de Cruquiusweg en biedt bijzonder veel luxe en verrassend veel ruimte. Wat direct in het oog springt, is de royale woonkeuken aan het terras. Je kunt deze keuken naar eigen wens invullen. Een rechte keuken, een hoekkeuken of een keuken met een eiland, het kan allemaal. En ook een lange eettafel kun je hier gemakkelijk kwijt. Met een klein trapje naar beneden kom je in de living. De living heeft een prachtige lichtinval dankzij het erkerkozijn en de plafondhoogte die varieert van ruim 3 tot 3,10 meter. De slaapzones zijn op een fraaie manier van elkaar gescheiden. Zo bereik je de masterbedroom vanuit de woonkeuken. Dit is een riante kamer, met een grote inloopkast en ensuite badkamer die compleet is ingericht met een inloopdouche, wastafel en toilet. De tweede badkamer ligt aan de gang, waar de twee andere slaapkamers zijn gesitueerd. Ook deze badkamer is luxe ingericht, met een ligbad, inloopdouche, wastafel en toilet. Daarnaast is er een separaat toilet en een berging voor de wasmachine, wasdroger en technische apparaten. In de gang kun je een fraaie, lange maatwerkkast creëren, als garderobe bijvoorbeeld.
- Stadswoning van circa 128 m2 op de begane grond
- Terras van circa 13 m2 op het zuidwesten
- Fraaie living met plafond die varieert van ruim 3 tot 3,10 meter
- Woonkeuken naar wens in te delen
- Drie ruime slaapkamers
- Masterbedroom met inloopkast en ensuite badkamer
- Tweede badkamer met inloop­douche, ligbad, wastafel en toilet
- Separaat toilet
- Berging voor de wasmachine, wasdroger en technische apparaten
- Eigen parkeerplaats en externe berging in de kelder

Binnentuinen en binnenstraten
Tussen de twee woonblokken van Houtsma liggen groene binnentuinen die bewoners een moment van rust bieden midden in de stad. Hier is ruimte om buiten te zitten, elkaar te ontmoeten of gewoon even van het groen te genieten. De binnentuinen vormen een beschutte plek waar bewoners zich thuis voelen en kinderen veilig kunnen spelen.
De binnenstraten verbinden de gebouwen met de kade en het water. Ze zijn autoluw en ontworpen voor voetgangers en fietsers. Door de afwisseling van groen, baksteen en staal blijft het stoere karakter van Cruquius overal voelbaar, terwijl het geheel een prettige, menselijke schaal houdt.

Houtsma is onderdeel van Cruquius: een voormalig industriegebied aan de oostkant van Amsterdam, dat langzaam verandert in een levendig stadseiland. Hier woon je op historische grond. Waar ooit schepen en loodsen het straatbeeld bepaalden, groeit nu een buurt met bewoners, barista’s, ondernemers en jonge gezinnen.
Cruquius is een mix van rauw en hartelijk. Je drinkt koffie bij Millie Vanillie, haalt een versgetapt biertje bij Krux of schuift aan bij La Contessa; een Italiaanse keuken met uitzicht op Groenplaats Insulinde. De wijk is stoer, sociaal en verrassend veelzijdig. En dankzij de ligging aan het water is de natuur nooit ver weg. Een ideale plek om te wonen! Schrijf je snel in!
naar boven

Foto's

naar boven

Kenmerken

Vraagprijs € 889.322,-
Bouwvorm Nieuwbouw
Type bovenwoning, appartement
Woonoppervlakte 105 m²
Inhoud 325 m³
Bouwjaar 2028
Slaapkamers 2
Woonlagen 1
Servicekosten € 263,- p/m
Tuin geen tuin
Garage parkeerkelder, parkeerplaats
Schuur box
Verwarming vloerverwarming geheel, warmte terugwininstallatie
Energielabel A+
naar boven

Plattegronden

naar boven

Special - Bouwnummer 27 (Bouwnr. 27) bekijken

Afspraak plannen?

Bekijk onze vestigingen
Elke dag tot 23.00 uur bereikbaar
Overzichtskaart van Nederland met alle vestigingen aangegeven
Plan nu bezichtiging Neem contact op
naar boven

Plan je route

Plan route
Voeg deze woning toe aan uw TomTom
Bakkerij Bank Busstation Café Gemeentehuis
Luchthaven Metro Museum Park Parkeerplaats
Restaurant School Sportclub Supermarkt Tankstation
Taxistandplaats Treinstation Universiteit Winkelcentrum Ziekenhuis