omslagfoto

Special - Bouwnummer 8 (Bouwnr. 8), Amsterdam € 891.871,- v.o.n. Contact

Beschrijving

START VERKOOP HOUTSMA FASE 1 OP CRUQUIUSEILAND

49 APPARTEMENTEN EN 9 STADSWONINGEN
Verkoop gestart.

HOUTSMA
Op Cruquiuseiland woon je stads én waterrijk. De komende jaren groeit hier een gevarieerd woonaanbod, met robuuste architectuur, groene binnenterreinen en veel aandacht voor comfort en duurzaamheid. Ben je op zoek naar nieuwbouw in Amsterdam met uitzicht op water, goede bereikbaarheid en een buurt die leeft? Dan is Cruquius iets voor jou. Een van de nieuwste projecten is Houtsma: een eigentijds woongebouw direct aan het Amsterdam-Rijnkanaal.

Houtsma is een nieuw woonproject aan de zuidzijde van het Oostelijk Havengebied, op een van de mooiste plekken van Cruquius. Hier komen 259 woningen, verdeeld over twee stedelijke carrés met intieme, groene binnenhoven. Het aanbod bestaat uit 116 koopwoningen en 143 huurappartementen, in een mix van comfortabele appartementen en ruime stadswoningen. In fase 1 komen 49 appartementen en 9 stadswoningen.

Wonen in Houtsma
Houtsma is ontworpen voor mensen die houden van de stad, maar ook van rust, ruimte en uitzicht. De twee woonblokken liggen rond groene binnentuinen en grenzen aan een autoluwe kade met zicht op het water. Of je nu kiest voor een appartement met balkon, een stadswoning met een eigen voordeur aan de kade of een woning met een bijzonder terras: overal voel je dezelfde kwaliteit en aandacht voor wooncomfort.

SPECIALS
Binnen Houtsma vind je ook woningen met nét dat beetje extra. Denk aan hoekappartementen met grote terrassen, woningen met meerdere buitenruimtes of exclusieve dakterrassen met uitzicht op het kanaal. Deze specials onderscheiden zich door hun ligging, indeling en afwerking.
De specials variëren van 85 tot 158 m² en hebben drie of vier kamers. De prijzen starten vanaf € 757.477 v.o.n. (op basis van jaarlijkse canon). Net als de andere woningen worden ze zonder keuken opgeleverd, zodat je deze volledig naar eigen wens kunt samenstellen.
Via LEICHT Amsterdam kun je kiezen uit hoogwaardige materialen en moderne apparatuur. De badkamers en toiletten worden ingericht door Tortu, met oog voor kwaliteit, detail en een rustige, natuurlijke uitstraling.

Type 5 - Geniet van het terras van maar liefst 31 m2
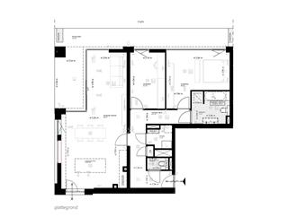
Deze ruime 3-kamerwoning van circa 108 m2 ligt op de hoek van Houtsma Zuid, op de begane grond. Wat direct in het oog springt is het royale terras aan het water van maar liefst 31 m2! Vanwege de hoekligging geniet je van een prachtige lichtinval in de living en open leefkeuken. En ook het directe uitzicht op het Amsterdam-Rijnkanaal zal nooit vervelen. Je hebt zicht op het water vanuit de living en het terras maar ook vanuit de twee slaapkamers. Dat is nog eens bijzonder wakker worden! De masterbedroom is een riante slaapkamer. Er is ruimte voor een lange maatwerk kastenwand, maar je kunt ook een inloopkast creëren. De badkamer ligt ernaast en is ingedeeld met een inloopdouche, ligbad, wastafel en toilet. De tweede slaapkamer is ideaal als kinderkamer of als thuiskantoor. In de berging is plaats voor de wasmachine en wasdroger en staan ook de technische apparaten.

- Appartement van circa 108 m2 op de begane grond
- Direct zicht op het Amsterdam-Rijnkanaal
- Groot terras van circa 31 m2 op het noorden en oosten
- Lichte living met open leefkeuken
- Keuken naar wens in te delen, zeer geschikt voor fraaie eilandkeuken
- Twee slaapkamers
- Apart toilet
- Badkamer met inloopdouche, ligbad, wastafel en toilet
- Berging voor de wasmachine, wasdroger en technische apparaten
- Eigen parkeerplaats in de kelder en externe berging op de begane grond

Binnentuinen en binnenstraten
Tussen de twee woonblokken van Houtsma liggen groene binnentuinen die bewoners een moment van rust bieden midden in de stad. Hier is ruimte om buiten te zitten, elkaar te ontmoeten of gewoon even van het groen te genieten. De binnentuinen vormen een beschutte plek waar bewoners zich thuis voelen en kinderen veilig kunnen spelen.
De binnenstraten verbinden de gebouwen met de kade en het water. Ze zijn autoluw en ontworpen voor voetgangers en fietsers. Door de afwisseling van groen, baksteen en staal blijft het stoere karakter van Cruquius overal voelbaar, terwijl het geheel een prettige, menselijke schaal houdt.

Houtsma is onderdeel van Cruquius: een voormalig industriegebied aan de oostkant van Amsterdam, dat langzaam verandert in een levendig stadseiland. Hier woon je op historische grond. Waar ooit schepen en loodsen het straatbeeld bepaalden, groeit nu een buurt met bewoners, barista’s, ondernemers en jonge gezinnen.
Cruquius is een mix van rauw en hartelijk. Je drinkt koffie bij Millie Vanillie, haalt een versgetapt biertje bij Krux of schuift aan bij La Contessa; een Italiaanse keuken met uitzicht op Groenplaats Insulinde. De wijk is stoer, sociaal en verrassend veelzijdig. En dankzij de ligging aan het water is de natuur nooit ver weg. Een ideale plek om te wonen! Schrijf je snel in!
naar boven

Foto's

naar boven

Kenmerken

Vraagprijs € 891.871,-
Bouwvorm Nieuwbouw
Type benedenwoning, appartement
Woonoppervlakte 108 m²
Inhoud 324 m³
Bouwjaar 2028
Slaapkamers 2
Woonlagen 1
Servicekosten € 270,- p/m
Tuin achtertuin, zijtuin
Ligging Tuin noordoost
Garage parkeerkelder, parkeerplaats
Schuur box
Verwarming vloerverwarming geheel, warmte terugwininstallatie
Energielabel A+
naar boven

Plattegronden

naar boven

Special - Bouwnummer 8 (Bouwnr. 8) bekijken

Afspraak plannen?

Bekijk onze vestigingen
Elke dag tot 23.00 uur bereikbaar
Overzichtskaart van Nederland met alle vestigingen aangegeven
Plan nu bezichtiging Neem contact op
naar boven

Plan je route

Plan route
Voeg deze woning toe aan uw TomTom
Bakkerij Bank Busstation Café Gemeentehuis
Luchthaven Metro Museum Park Parkeerplaats
Restaurant School Sportclub Supermarkt Tankstation
Taxistandplaats Treinstation Universiteit Winkelcentrum Ziekenhuis