omslagfoto

Stadswoning - Bouwnummer 11 (Bouwnr. 11), Amsterdam € 902.234,- v.o.n. Verkocht onder voorbehoud Contact

Beschrijving

START VERKOOP HOUTSMA FASE 1 OP CRUQUIUSEILAND

49 APPARTEMENTEN EN 9 STADSWONINGEN
Verkoop gestart.

HOUTSMA
Op Cruquiuseiland woon je stads én waterrijk. De komende jaren groeit hier een gevarieerd woonaanbod, met robuuste architectuur, groene binnenterreinen en veel aandacht voor comfort en duurzaamheid. Ben je op zoek naar nieuwbouw in Amsterdam met uitzicht op water, goede bereikbaarheid en een buurt die leeft? Dan is Cruquius iets voor jou. Een van de nieuwste projecten is Houtsma: een eigentijds woongebouw direct aan het Amsterdam-Rijnkanaal.

Houtsma is een nieuw woonproject aan de zuidzijde van het Oostelijk Havengebied, op een van de mooiste plekken van Cruquius. Hier komen 259 woningen, verdeeld over twee stedelijke carrés met intieme, groene binnenhoven. Het aanbod bestaat uit 116 koopwoningen en 143 huurappartementen, in een mix van comfortabele appartementen en ruime stadswoningen. In fase 1 komen 49 appartementen en 9 stadswoningen.

Wonen in Houtsma
Houtsma is ontworpen voor mensen die houden van de stad, maar ook van rust, ruimte en uitzicht. De twee woonblokken liggen rond groene binnentuinen en grenzen aan een autoluwe kade met zicht op het water. Of je nu kiest voor een appartement met balkon, een stadswoning met een eigen voordeur aan de kade of een woning met een bijzonder terras: overal voel je dezelfde kwaliteit en aandacht voor wooncomfort.

STADSWONINGEN
Langs de kade komen royale stadswoningen met een eigen entree aan het water. Je woont hier met het comfort van nieuwbouw, maar met het gevoel van een huis aan de gracht. De hoge plafonds, grote ramen en open leefkeuken zorgen voor een lichte en ruimtelijke woonbeleving.
De stadswoningen variëren van 97 tot 117 m² en hebben drie of vier kamers. De prijzen starten vanaf €772.129 v.o.n. (op basis van jaarlijkse canon). De meeste woningen beschikken over een vaste parkeerplaats in de garage onder het gebouw.
De keuken is vrij in te delen en te realiseren via LEICHT Amsterdam, dat hoogwaardige keukens levert met duurzame materialen en oog voor detail. De badkamers en toiletten worden verzorgd door Tortu, dat bekendstaat om zijn stijlvolle combinaties van sanitair en tegelwerk.

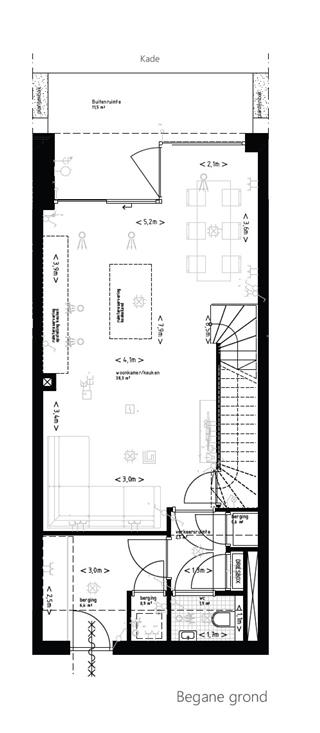
Type 46 Stadswoning met de keuken als centraal middelpunt
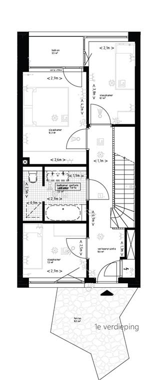
Deze tweelaagse stadswoning van circa 108 m2 in Houtsma Zuid, met een terras op het oosten, ligt direct aan het Amsterdam-Rijnkanaal. Als je van koken houdt, dan zal dit gezinshuis je aanspreken. De open keuken vormt namelijk het centrale middelpunt van de living. Terwijl jij staat te kokkerellen, zit je gezelschap aan het eiland en zie je de scheepsvaart en bootjes langsvaren. De eettafel past mooi in de nis bij het grote, hoge raam. Dus ook hier is het volop genieten van de taferelen op het water. Verder zorgt de plafondhoogte van ruim 3,10 meter voor een extra ruimtelijk gevoel! Via de trap in de living kom je op de slaapverdieping. Hier liggen drie slaapkamers en een royale badkamer, compleet met inloopdouche, ligbad, wastafel en tweede toilet. Aan de master­bedroom ligt het balkon. Het separaat toilet en een kastvoor de wasmachine en wasdroger grenzen beneden aan de berging.
- Stadswoning van circa 108 m2 op de begane grond en eerste verdieping
- Uniek uitzicht op het Amsterdam-Rijnkanaal
- Terras van circa 10 m2 aan de binnentuin op het westen
- Balkon van circa 4 m2 aan de masterbedroom
- Royale living met hoog plafond van circa 3,10 meter
- Keuken naar wens in te delen, denk aan een lange, rechte keuken of een fraaie eilandkeuken
- Bergkast met plaats voor de wasmachine en wasdroger
- Drie slaapkamers
- Badkamer met inloopdouche, ligbad, wastafel en toilet
- Separaat toilet beneden
- Inpandige berging
- Eigen parkeerplaats in de kelder
- Directe entree vanuit de berginggang


Binnentuinen en binnenstraten
Tussen de twee woonblokken van Houtsma liggen groene binnentuinen die bewoners een moment van rust bieden midden in de stad. Hier is ruimte om buiten te zitten, elkaar te ontmoeten of gewoon even van het groen te genieten. De binnentuinen vormen een beschutte plek waar bewoners zich thuis voelen en kinderen veilig kunnen spelen.
De binnenstraten verbinden de gebouwen met de kade en het water. Ze zijn autoluw en ontworpen voor voetgangers en fietsers. Door de afwisseling van groen, baksteen en staal blijft het stoere karakter van Cruquius overal voelbaar, terwijl het geheel een prettige, menselijke schaal houdt.

Houtsma is onderdeel van Cruquius: een voormalig industriegebied aan de oostkant van Amsterdam, dat langzaam verandert in een levendig stadseiland. Hier woon je op historische grond. Waar ooit schepen en loodsen het straatbeeld bepaalden, groeit nu een buurt met bewoners, barista’s, ondernemers en jonge gezinnen.
Cruquius is een mix van rauw en hartelijk. Je drinkt koffie bij Millie Vanillie, haalt een versgetapt biertje bij Krux of schuift aan bij La Contessa; een Italiaanse keuken met uitzicht op Groenplaats Insulinde. De wijk is stoer, sociaal en verrassend veelzijdig. En dankzij de ligging aan het water is de natuur nooit ver weg. Een ideale plek om te wonen! Schrijf je snel in!

naar boven

Foto's

naar boven

Kenmerken

Vraagprijs € 902.234,-
Bouwvorm Nieuwbouw
Type maisonnette, appartement
Woonoppervlakte 108 m²
Inhoud 324 m³
Bouwjaar 2028
Slaapkamers 3
Woonlagen 2
Servicekosten € 270,- p/m
Tuin achtertuin, voortuin
Ligging Tuin oost
Garage parkeerkelder, parkeerplaats
Schuur inpandig
Verwarming vloerverwarming geheel, warmte terugwininstallatie
Energielabel A+
naar boven

Plattegronden

naar boven

Stadswoning - Bouwnummer 11 (Bouwnr. 11) bekijken

Afspraak plannen?

Bekijk onze vestigingen
Elke dag tot 23.00 uur bereikbaar
Overzichtskaart van Nederland met alle vestigingen aangegeven
Plan nu bezichtiging Neem contact op
naar boven

Plan je route

Plan route
Voeg deze woning toe aan uw TomTom
Bakkerij Bank Busstation Café Gemeentehuis
Luchthaven Metro Museum Park Parkeerplaats
Restaurant School Sportclub Supermarkt Tankstation
Taxistandplaats Treinstation Universiteit Winkelcentrum Ziekenhuis