omslagfoto

Stadswoning - Bouwnummer 14 (Bouwnr. 14), Amsterdam € 910.600,- v.o.n. Verkocht onder voorbehoud Contact

Beschrijving

START VERKOOP HOUTSMA FASE 1 OP CRUQUIUSEILAND

49 APPARTEMENTEN EN 9 STADSWONINGEN
Verkoop gestart.

HOUTSMA
Op Cruquiuseiland woon je stads én waterrijk. De komende jaren groeit hier een gevarieerd woonaanbod, met robuuste architectuur, groene binnenterreinen en veel aandacht voor comfort en duurzaamheid. Ben je op zoek naar nieuwbouw in Amsterdam met uitzicht op water, goede bereikbaarheid en een buurt die leeft? Dan is Cruquius iets voor jou. Een van de nieuwste projecten is Houtsma: een eigentijds woongebouw direct aan het Amsterdam-Rijnkanaal.

Houtsma is een nieuw woonproject aan de zuidzijde van het Oostelijk Havengebied, op een van de mooiste plekken van Cruquius. Hier komen 259 woningen, verdeeld over twee stedelijke carrés met intieme, groene binnenhoven. Het aanbod bestaat uit 116 koopwoningen en 143 huurappartementen, in een mix van comfortabele appartementen en ruime stadswoningen. In fase 1 komen 49 appartementen en 9 stadswoningen.

Wonen in Houtsma
Houtsma is ontworpen voor mensen die houden van de stad, maar ook van rust, ruimte en uitzicht. De twee woonblokken liggen rond groene binnentuinen en grenzen aan een autoluwe kade met zicht op het water. Of je nu kiest voor een appartement met balkon, een stadswoning met een eigen voordeur aan de kade of een woning met een bijzonder terras: overal voel je dezelfde kwaliteit en aandacht voor wooncomfort.

STADSWONINGEN
Langs de kade komen royale stadswoningen met een eigen entree aan het water. Je woont hier met het comfort van nieuwbouw, maar met het gevoel van een huis aan de gracht. De hoge plafonds, grote ramen en open leefkeuken zorgen voor een lichte en ruimtelijke woonbeleving.
De stadswoningen variëren van 97 tot 117 m² en hebben drie of vier kamers. De prijzen starten vanaf €772.129 v.o.n. (op basis van jaarlijkse canon). De meeste woningen beschikken over een vaste parkeerplaats in de garage onder het gebouw.
De keuken is vrij in te delen en te realiseren via LEICHT Amsterdam, dat hoogwaardige keukens levert met duurzame materialen en oog voor detail. De badkamers en toiletten worden verzorgd door Tortu, dat bekendstaat om zijn stijlvolle combinaties van sanitair en tegelwerk.

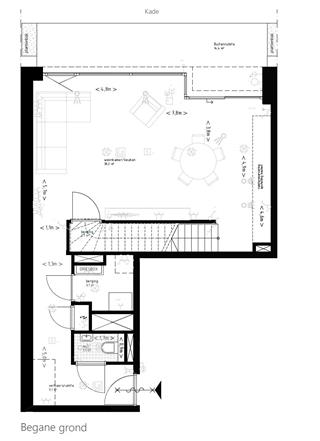
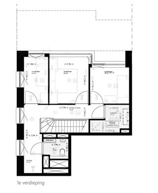
Type 44 Stadswoning met 3 slaapkamers aan het Amsterdam-Rijnkanaal
Deze tweelaagse stadswoning van circa 110 m2 in Houtsma Zuid heeft meerdere kwaliteiten. De ligging, aan het Amsterdam-Rijnkanaal, is natuurlijk fenomenaal. Elke dag geniet je van langsvarende scheepsvaart, bootjes en watervogels op het water. Vanuit de living met open keuken heb je een geweldig uitzicht op het water door de indrukwekkende pui van zo’n 7,5 meter breed en de plafondhoogte van ruim 3,10 meter. En ook de lichtinval in de living en de keuken is hierdoor optimaal. De keuken is getekend als rechte keuken, maar kun je naar eigen wens indelen. Zo zou je bijvoorbeeld ook voor een eilandkeuken kunnen kiezen. Via de trap in de keuken bereik je de slaapverdieping. Deze verdieping is ingedeeld met drie slaapkamers, een separaat toilet en een badkamer met inloopdouche, ligbad en wastafel. In de berging beneden is plaats voor de wasmachine en wasdroger en staan de technische apparaten.
- Stadswoning van circa 110 m2 op de begane grond en eerste verdieping
- Schitterend uitzicht op het Amsterdam-Rijnkanaal
- Terras van ruim 14 m2 op het oosten
- Balkon van circa 2 m2 aan een van de slaapkamers
- Royale living met hoog plafond van circa 3,10 meter
- Keuken naar wens in te delen, denk aan een rechte keuken of een fraaie eilandkeuken
- Berging met plaats voor de wasmachine, wasdroger en technische apparaten
- Drie slaapkamers
- Badkamer met inloopdouche, ligbad en wastafel
- Op elke verdieping een separaat toilet
- Eigen parkeerplaats in de kelder en externe berging op de begane grond

Binnentuinen en binnenstraten
Tussen de twee woonblokken van Houtsma liggen groene binnentuinen die bewoners een moment van rust bieden midden in de stad. Hier is ruimte om buiten te zitten, elkaar te ontmoeten of gewoon even van het groen te genieten. De binnentuinen vormen een beschutte plek waar bewoners zich thuis voelen en kinderen veilig kunnen spelen.
De binnenstraten verbinden de gebouwen met de kade en het water. Ze zijn autoluw en ontworpen voor voetgangers en fietsers. Door de afwisseling van groen, baksteen en staal blijft het stoere karakter van Cruquius overal voelbaar, terwijl het geheel een prettige, menselijke schaal houdt.

Houtsma is onderdeel van Cruquius: een voormalig industriegebied aan de oostkant van Amsterdam, dat langzaam verandert in een levendig stadseiland. Hier woon je op historische grond. Waar ooit schepen en loodsen het straatbeeld bepaalden, groeit nu een buurt met bewoners, barista’s, ondernemers en jonge gezinnen.
Cruquius is een mix van rauw en hartelijk. Je drinkt koffie bij Millie Vanillie, haalt een versgetapt biertje bij Krux of schuift aan bij La Contessa; een Italiaanse keuken met uitzicht op Groenplaats Insulinde. De wijk is stoer, sociaal en verrassend veelzijdig. En dankzij de ligging aan het water is de natuur nooit ver weg. Een ideale plek om te wonen! Schrijf je snel in!
naar boven

Foto's

naar boven

Kenmerken

Vraagprijs € 910.600,-
Bouwvorm Nieuwbouw
Type maisonnette, appartement
Woonoppervlakte 110 m²
Inhoud 330 m³
Bouwjaar 2028
Slaapkamers 3
Woonlagen 2
Servicekosten € 275,- p/m
Tuin achtertuin
Ligging Tuin oost
Garage parkeerkelder, parkeerplaats
Schuur box
Verwarming vloerverwarming geheel, warmte terugwininstallatie
Energielabel A+
naar boven

Plattegronden

naar boven

Stadswoning - Bouwnummer 14 (Bouwnr. 14) bekijken

Afspraak plannen?

Bekijk onze vestigingen
Elke dag tot 23.00 uur bereikbaar
Overzichtskaart van Nederland met alle vestigingen aangegeven
Plan nu bezichtiging Neem contact op
naar boven

Plan je route

Plan route
Voeg deze woning toe aan uw TomTom
Bakkerij Bank Busstation Café Gemeentehuis
Luchthaven Metro Museum Park Parkeerplaats
Restaurant School Sportclub Supermarkt Tankstation
Taxistandplaats Treinstation Universiteit Winkelcentrum Ziekenhuis