omslagfoto

Bennemeerstraat 46, Hoofddorp € 402.000,- v.o.n. Nieuw Plan nu je bezichtiging Plan een fysieke of virtuele afspraak

Beschrijving

HONK HOOFDDORP – BOUW GEGARANDEERD!
Bij het project HONK in Hoofddorp is het uniek dat de bouw al gestart is terwijl de verkoop ook niet is gestart. Dit betekent minder lang wachten op jouw nieuwe appartement.
Na de verkoop van de eerste fase (gebouw Oslo) is nu de verkoop van gebouw Hong Kong gestart. Digitaal inschrijven kan via de projectwebsite tot donderdag 30 oktober 2025 12.00 uur.

Voor meer informatie ben je dinsdag 28 oktober van harte welkom op de bouwlocatie tijdens het start bouw feestje. Het verkoopteam is dan aanwezig om al je vragen te beantwoorden en ook is de brochure met prijslijst beschikbaar. Het verkoopteam staat voor je klaar tussen 16.30 en 19.00 uur aan de Debbemeerstraat 29 in Hoofddorp.

HONK bestaat uit vier unieke woongebouwen met wereldse namen: Hongkong, Oslo, New York en Kaapstad. Samen vormen ze de naam HONK – een knipoog naar de centrale ligging en internationale connecties van Hoofddorp. HONK biedt ruim 130 koopappartementen, verdeeld over 2-, 3-, 4- en 5-kamerappartementen. Hier woon je in een autoluwe en groene omgeving, met volop ruimte om te ontspannen, te ontmoeten en te genieten.

BOUWNUMMER 38 UITGELICHT:
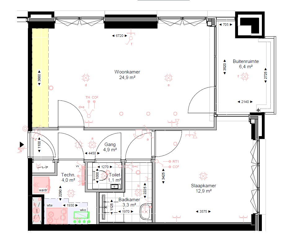
Heerlijk 2-kamerappartement gelegen op de derde verdieping met balkon op het zuidoosten met uitzicht over de gemeenschappelijke binnentuin.
• Woonoppervlakte: circa 55 m²
• Open keuken (casco oplevering)
• Balkon op het zuidoosten
• 1 slaapkamer
• Technische ruimte met opstelplaats voor wasmachine/droger
• Energiezuinig en comfortabel wonen
• Lift aanwezig in het complex
• Complete badkamer met douche en wastafel
• Separate toiletruimte
• Technische ruimte met opstelplaats voor wasmachine en berging
• Energiezuinig met vloerverwarming en energielabel A++
• Dankzij een warmte- en koudeopslagsysteem (WKO) verwarm en koel je je appartement op een slimme manier, terwijl extra geïsoleerde wanden, daken en triple glas in combinatie met geïsoleerde aluminium kozijnen zorgen voor een constante, aangename temperatuur.
• Parkeerplaats in parkeerkelder (koopsom € 31.500,-- v.o.n.)
• Gemeenschappelijke fietsenberging
• Omringd door gemeenschappelijk tuin op de parkeergarage
• Lift aanwezig
• Koopsom appartement € 402.000,-- v.o.n. (excl. Parkeerplaats)

Op zoek naar een nieuwbouwappartement dat groen, stads én super centraal is? Dan is HONK echt iets voor jou. Midden in Hoofddorp, waar stoere architectuur en duurzaam design samenkomen in een levendig nieuw stadsdistrict.

De ligging is perfect. Binnen 4 minuten sta je op Schiphol, binnen 25 minuten in Amsterdam of Haarlem. En met het stadscentrum, horeca, sportclubs en natuur om de hoek, heb je alles binnen handbereik.
De appartementen in HONK zijn energiezuinig (A++/A+++), comfortabel en toekomstbestendig. Elk appartement heeft een eigen balkon of terras, en bewoners delen een verhoogd dakpark, groene corridor en gemeenschappelijke buitenruimtes. Parkeren doe je uit het zicht, in een ondergrondse garage of in een van de aangrenzende parkeerkoffers.

HONK is er voor echte stadsgenieters die groen waarderen, maar ook het gemak van een goede koffiebar of station om de hoek. Hier woon je bewust en ontspannen, met alle ruimte voor jezelf en verbinding met de buurt.

Er zijn ook nog andere typen appartementen beschikbaar. Kijk op de projectwebsite voor het aanbod van alle appartementen.
* 12 tweekamerappartementen (ca. 55–60 m2). Prijzen tussen € 399.500,- en € 444.000,- v.o.n. Deze gezellige woningen hebben een royale woon- en slaapkamer en hebben tevens een interne berging.
* 34 driekamerappartementen (ca. 65–89 m2). Prijzen tussen € 450.000,- en € 615.000,- v.o.n. Deze woningen zijn slim ingedeeld en bieden veel licht en zicht op Hoofddorp, het dakpark of de groene corridor.
* 3 vierkamerappartementen van 83 m2 met een prijs tussen € 580.000,- en € 585.000,- v.o.n. Deze riante woningen heeft een balkon gelegen op het zuidwesten.
* 1 uniek vijfkamerappartement met een oppervlakte van maar liefst 142 m2 met een prijs van € 975.000,- v.o.n. Deze riante hoekwoning heeft een balkon en is gelegen op de bovenste verdieping.
naar boven

Foto's

naar boven

Kenmerken

Vraagprijs € 402.000,-
Bouwvorm Nieuwbouw
Type bovenwoning
Ligging aan rustige weg, in woonwijk
Woonoppervlakte 55 m²
Inhoud 143 m³
Bouwjaar 2026
Woonlagen 5
Servicekosten € 0,- p/m
Bijdrage VVE € 140,- p/m
Tuin geen tuin
Garage parkeerkelder
Verwarming vloerverwarming geheel
Energielabel A+++
naar boven

Bennemeerstraat 46 bekijken

Woning bezichtigen?

Bekijk onze vestigingen
Elke dag tot 23.00 uur bereikbaar
Overzichtskaart van Nederland met alle vestigingen aangegeven
Plan nu bezichtiging
naar boven

Plan je route

Plan route
Voeg deze woning toe aan uw TomTom
Bakkerij Bank Busstation Café Gemeentehuis
Luchthaven Metro Museum Park Parkeerplaats
Restaurant School Sportclub Supermarkt Tankstation
Taxistandplaats Treinstation Universiteit Winkelcentrum Ziekenhuis