omslagfoto

Bestevaer 39, Huizen € 435.000,- v.o.n. Onder optie Contact

Beschrijving

VERKOOP GESTART: Havenzicht in Thuis in Huizen met 29 APPARTEMENTEN

De verkoop is gestart van het nieuwbouwproject Thuis in Huizen. Kijk voor meer informatie ook op de projectwebsite.

Thuis in Huizen bestaat uit twee deelprojecten:
- Locatie Oude Haven fase 3
- Locatie Havenzicht.
In deelproject Havenzicht, op de hoek van de IJsselmeerstraat en de Bestevaer, komen 24 huurappartementen en 29 koopappartementen, waarvan er nu 14 appartementen in blok 2 in de verkoop gaan. Of je nu starter of doorstromer bent; jong of al iets ouder; alleen, een stel of een gezin? De appartementen van Thuis in Huizen bieden voor elke woonwens wat wils.

HAVENZICHT
De eerste fase bestaat uit 14 appartementen in blok 2 welke gelegen zijn aan de Bestevaer. Dit is de locatie Silverdome aan de Bestevaer 5, waar vroeger de discotheek was gevestigd. De architectuur is modern met een knipoog naar het rijke visserijverleden van Huizen, toen imposante pakhuizen nog het straatbeeld kleurden. Grote raampartijen, speelse gevelindelingen en fraai metselwerk geven het gebouw een statig aanzien. De appartementen zijn gelegen aan de oost- en zuidzijde van het gebouw.

APPARTEMENTEN
De 14 appartementen zijn gelegen op het zuiden aan de Bestevaer tegenover de parkeerplaats van de Lidl. In dit appartementengebouw (blok 2) worden 3 appartementtypen gerealiseerd, verdeeld over 5 woonlagen met daaronder een parkeerkelder en -dek. Het appartementsgebouw beschikt over een lift en er is op het parkeerdek een afgesloten gemeenschappelijke fietsenberging. Het is mogelijk om een afgesloten privé berging in de parkeerkelder te kopen.

TYPE C
De 12 appartementen van Type C hebben een balkon op het zuiden of oosten en zijn verdeeld over de eerste tot en met vierde verdieping.

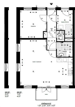
De twee appartementen met het balkon op het oosten, hebben in de zuidgevel een heerlijk Frans balkon. De 2-kamer appartementen hebben woonoppervlakte van circa 67 m2 (inclusief inpandige berging/installatie ruimte van circa 6 m2). Vanuit de hal is er toegang tot de ruime slaapkamer, de grote inpandige berging met opstelplaats van de installaties zoals de warmtepomp en hier bevindt zich tevens de opstelplaats voor de wasmachine. Vanuit de hal is er tevens toegang tot de badkamer. Deze wordt compleet opgeleverd met toilet, douche, wastafel, tegels en vloerverwarming. De ruime en lichte woonkamer met open keuken heeft middels open slaande deuren toegang tot het balkon (oost of zuid). De keuken is niet in de koopsom inbegrepen, zodat u deze naar eigen smaak kunt uitkiezen. Op het parkeerdek of in de parkeergarage heb je de beschikking over je eigen parkeerplaats.

LOCATIE
Havenzicht ligt op slechts 5 minuten van het gezellige centrum van Huizen, de haven en het Gooimeer. Boodschappen doen, een hapje eten, een terrasje pakken of shoppen? Het kan allemaal op loopafstand. Wil je verder weg? Het OV is goed geregeld en met de auto zit je zo op de A1 of A27, rij je in 20 minuten op de ring Amsterdam en sta je binnen 30 minuten in het centrum van Amsterdam, Utrecht of Amersfoort. Vanuit centraal Huizen ligt heel Nederland aan je voeten.

Koopsom van € 409.000,-- tot en met € 468.000,-- v.o.n. inclusief parkeerplaats
naar boven

Foto's

naar boven

Kenmerken

Vraagprijs € 435.000,-
Bouwvorm Nieuwbouw
Type galerijflat, appartement
Ligging in woonwijk
Woonoppervlakte 61 m²
Inhoud 200 m³
Bouwjaar 2025
Woonlagen 5
Servicekosten € 200,- p/m
Bijdrage VVE € 200,- p/m
Tuin geen tuin
Garage parkeerkelder
Verwarming vloerverwarming geheel, warmtepomp
Energielabel A+++
naar boven

Bestevaer 39 bekijken

Afspraak plannen?

Bekijk onze vestigingen
Elke dag tot 23.00 uur bereikbaar
Overzichtskaart van Nederland met alle vestigingen aangegeven
Plan nu bezichtiging Neem contact op
naar boven

Plan je route

Plan route
Voeg deze woning toe aan uw TomTom
Bakkerij Bank Busstation Café Gemeentehuis
Luchthaven Metro Museum Park Parkeerplaats
Restaurant School Sportclub Supermarkt Tankstation
Taxistandplaats Treinstation Universiteit Winkelcentrum Ziekenhuis