omslagfoto

Bestevaer 47, Huizen € 469.000,- v.o.n. Contact

Beschrijving

VERKOOP GESTART: Havenzicht Thuis in Huizen met 29 APPARTEMENTEN

Thuis in Huizen bestaat uit twee deelprojecten:
- Locatie Oude Haven fase 3 bevindt zich aan de Havenstraat met uitzicht over de haven van Huizen.
- Locatie Havenzicht. In deelproject Havenzicht, op de hoek van de IJsselmeerstraat en de Bestevaer, komen 24 huurappartementen en 29 koopappartementen.
Of je nu starter of doorstromer bent; jong of al iets ouder; alleen, een stel of een gezin? De appartementen van Thuis in Huizen bieden voor elke woonwens wat wils.

HAVENZICHT FASE 2
De 15 appartementen van fase 2 bevinden zich in blok 3 welke gelegen is aan de zijde van de IJsselmeerstraat, op de locatie van Silverdome de vroegere discotheek. De appartementen in blok 3 hebben zicht richting de haven. De architectuur is modern met een knipoog naar het rijke visserijverleden van Huizen, toen imposante pakhuizen nog het straatbeeld kleurden. Grote raampartijen, speelse gevelindelingen en fraai metselwerk geven het gebouw een statig aanzien. De appartementen zijn gelegen aan de oostzijde van het gebouw.

APPARTEMENTEN
Het project Havenzicht bestaat uit 29 koop appartementen verdeeld over 2 gebouwen (blokken) en een blok huurappartementen. Er komen 4 verschillende typen appartementen, verdeeld over 5 woonlagen met daaronder een parkeerkelder en -dek. Het appartementengebouw beschikt over een lift en er is op het parkeerdek een afgesloten gemeenschappelijke fietsenberging. Het is mogelijk om een afgesloten privé berging in de parkeerkelder te kopen.

Type D
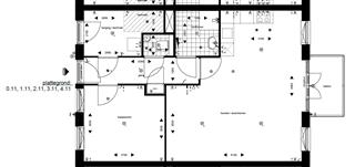
De 15 appartementen van het type D zijn gelegen in blok 3 van het gebouw Havenzicht. De 2-kamerappartementen van circa 62 m2 beschikken over een balkon van 4m2 op het zuiden, noorden of oosten. De appartementen hebben een fijne woonkamer met open keuken met aangrenzend balkon, een slaapkamer en een inpandige berging. Vanuit de hal is er toegang tot de ruime slaapkamer, grote inpandige berging/installatie ruimte van circa 6,5 m2 met opstelplaats van de installaties zoals de warmtepomp en hier bevindt zich tevens de opstelplaats voor de wasmachine. Vanuit de hal is er tevens toegang tot de badkamer. Deze wordt compleet opgeleverd met toilet, douche, wastafel en tegels. Het appartement is voorzien van vloerverwarming. De ruime en lichte woonkamer met open keuken heeft middels openslaande deuren toegang tot het balkon. De keuken is niet in de koopsom inbegrepen, zodat u deze naar eigen smaak kunt uitkiezen.

Appartement 3.11 is gelegen op de vierde woonlaag. Het balkon is gelegen op het oosten met zicht op het water.

LOCATIE
Havenzicht ligt op slechts 5 minuten van het gezellige centrum van Huizen, de haven en het Gooimeer. Boodschappen doen, een hapje eten, een terrasje pakken of shoppen? Het kan allemaal op loopafstand. Wil je verder weg? Het OV is goed geregeld en met de auto zit je zo op de A1 of A27, rij je in 20 minuten op de ring Amsterdam en sta je binnen 30 minuten in het centrum van Amsterdam, Utrecht of Amersfoort. Vanuit centraal Huizen ligt heel Nederland aan je voeten.

Koopsom € 450.000,-- v.o.n. inclusief parkeerplaats
naar boven

Foto's

naar boven

Kenmerken

Vraagprijs € 469.000,-
Bouwvorm Nieuwbouw
Type bovenwoning, appartement
Woonoppervlakte 61 m²
Inhoud 201 m³
Bouwjaar 2025
Slaapkamers 1
Woonlagen 5
Servicekosten € 200,- p/m
Tuin geen tuin
Garage parkeerkelder, parkeerplaats
Schuur box
Verwarming warmtepomp
naar boven

Plattegronden

naar boven

Bestevaer 47 bekijken

Afspraak plannen?

Bekijk onze vestigingen
Elke dag tot 23.00 uur bereikbaar
Overzichtskaart van Nederland met alle vestigingen aangegeven
Plan nu bezichtiging Neem contact op
naar boven

Plan je route

Plan route
Voeg deze woning toe aan uw TomTom
Bakkerij Bank Busstation Café Gemeentehuis
Luchthaven Metro Museum Park Parkeerplaats
Restaurant School Sportclub Supermarkt Tankstation
Taxistandplaats Treinstation Universiteit Winkelcentrum Ziekenhuis