omslagfoto

Breedweer 88, Koog aan de Zaan € 395.000,- v.o.n. Onder optie Inschrijven

Beschrijving

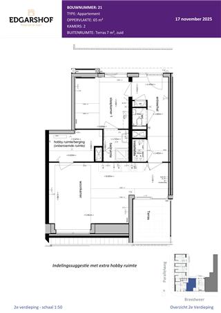
Bouwnummer 21 - tweekamerappartement 66 m2/ loggia op het westen (7 m2), 2e verdieping, energielabel A++

Type 10

Dit tweekamerappartement op de bovenste etage geniet met een royale nokhoogte van de dakopbouw. Hierdoor ontstaat een bijzondere indeling waarin daglicht een belangrijke rol mag spelen. De grote raampartijen rond een loggia van maar liefst 7 vierkante meter laten het licht aan twee kanten binnen, terwijl de beschutting zorgt voor intimiteit. Een schuifpui leidt naar dit in het ontwerp geïntegreerde balkon op het zuiden. Hier kan in alle rust en privacy van de hele dag zon worden genoten. De royale slaapkamer, ± 16 m2!, licht aan de rustige galerijzijde.
In de L-vormige woonkamer wordt een open keuken bestemd, deze wordt casco opgeleverd. Kopers kunnen deze geheel inrichten naar hun eigen smaak en behoefte. Anno dit tijdperk koken we uiteraard op elektra. Ook de verwarming wordt hierop gebaseerd. Voelbaar, niet zichtbaar, want de vloeren vormen de warmtebron. Dat geldt ook voor de badkamer met inloopdouche en wastafel en bij dit woningtype separaat ingedeelde toiletruimte met fontein. Beide sanitaire ruimtes worden betegeld en voorzien van hoogwaardig sanitair en kranenwerk.

Indeling: hoofdentree via Breedweer, met brievenbussen en bellentableau. Gemeenschappelijke hal met doorgang naar het trappenhuis en liftinstallatie. Eveneens bereikbaar via het binnenterrein met binnentuin, parkeerplaatsen en gezamenlijke fietsenstallingen.
2e Etage: gedeeld portiek. Galerij.
Entree appartement. Hal met meterkast. Slaapkamer (16 m2) aan galerijzijde, met toegang tot betegelde badkamer met wastafel en inloopdouche. Toiletruimte met wandcloset en fontein. Berging annex technische ruimte voor installaties en aansluitingen wasmachine en -droger. Lichte L-vormige woonkamer met inloop bergruimte en open keuken (casco op te leveren). Dakkapel en schuifpui naar inpandig balkon (7 m2) op het zuiden.

Op het gezamenlijke binnenterrein worden in totaal elf parkeerplaatsen gerealiseerd. De fietsenstallingen (juist, meervoud) komen hierachter. Dit zijn bij uitstek locaties om de zonkracht te benutten voor stroom. Want uiteraard is Edgarshof ook in dit opzicht gericht op een fossiele brandstofvrije toekomst.

Edgarshof ligt in Koog aan de Zaan, ten oosten van het spoor en de Provincialeweg (de N-verbinding tussen Alkmaar en Amsterdam) en centraal in Zaanstad. Met een eigen NS-station ligt forenzen per openbaar vervoer voor de hand, de fiets wordt steeds vaker ingezet als alternatief. En waarom ook niet? De Hempont, die Zaandam met het Amsterdamse Westelijk Havengebied verbindt, ligt een kwartiertje fietsen verderop. Minder als de pedaalkracht elektronisch ondersteund wordt. De snelle fietsroute naar Amsterdam-Noord of alle andere uithoeken van de Zaanstreek heeft een comfortabele evenknie in het wijdvertakte streekvervoer.
Automobilisten draaien binnen de kilometer de A8 op en kruisen vijf minuten later de Coentunnel. De andere kant op leidt naar de A9, richting Haarlem en Schiphol. En vice versa. Snel weer thuis in Edgarshof!

naar boven

Foto's

naar boven

Kenmerken

Vraagprijs € 395.000,-
Bouwvorm Nieuwbouw
Type galerijflat, appartement
Ligging in woonwijk
Woonoppervlakte 66 m²
Inhoud 201 m³
Bouwjaar 2025
Slaapkamers 1
Woonlagen 1
Servicekosten € 0,- p/m
Tuin zonneterras
Garage geen garage
Verwarming vloerverwarming geheel, warmte terugwininstallatie, warmtepomp
naar boven

Breedweer 88 bekijken

Plan nu bezichtiging Inschrijven
naar boven

Plan je route

Plan route
Voeg deze woning toe aan uw TomTom
Bakkerij Bank Busstation Café Gemeentehuis
Luchthaven Metro Museum Park Parkeerplaats
Restaurant School Sportclub Supermarkt Tankstation
Taxistandplaats Treinstation Universiteit Winkelcentrum Ziekenhuis