omslagfoto

Herenhuis bouwnummer 15 (Bouwnr. 15), Landsmeer € 994.250,- v.o.n. Verkocht onder voorbehoud Contact

Beschrijving

Wonen aan het water

Breekoever is een bijzonder nieuwbouwproject dat in drie fases wordt gerealiseerd. Met Breekoever3 wordt de laatste fase afgerond: een prachtig sluitstuk bestaande uit 8 royale herenhuizen en 10 levensloopbestendige woningen.

De woningen liggen in het gebied rondom de Kerkebreek, direct aan en bij het water. Hier komen eigentijdse woningen met een klassiek karakter, geïnspireerd op de historische Waterlandse bouwstijl en het dorpslint van Landsmeer. Iedere woning in Breekoever3 is uniek dankzij de variatie in gevelindelingen, kleuren, rabatdelen, makelaars en andere karakteristieke details.

Langs de fraai ingerichte kade geniet u straks van de levendigheid van wonen aan het water. Een plek waar bewoners elkaar ontmoeten, kinderen samen spelen in de natuurlijke speeltuin en waar u zelf tot rust komt met een kop koffie in de zon. Terwijl u uitkijkt op passerende sloepen en boten, kunt u er ook zelf voor kiezen het water op te gaan – misschien wel in uw eigen sloep.

De architectuur sluit naadloos aan bij de omgeving: rijkelijk gedetailleerde woningen die de sfeer van het oude Waterland ademen, maar dan in een hedendaagse uitvoering. Variatie binnen eenvoud, met oog voor klassieke details en een tijdloze uitstraling.

Dat is Breekoever3: de laatste fase van een uniek woonproject, en het kroonstuk van de buurt.

Herenhuis – Type B - bouwnummer 15 - hoek

De woningen van Type B zijn echt uniek! Op de begane grond hebben ze een schuine hoek met daarin kamerhoge ramen, waardoor u extra kunt genieten van het uitzicht over het water. Deze woningen liggen aan de westzijde van Breekoever3 en hebben een woonoppervlak van ca. 153 m2 en 5 slaapkamers. De tuin ligt op het oosten. Volop ruimte voor logees of een thuiswerkplek!

De ligging van de achtertuin is op het oosten, de aan de waterzijde gelegen voortuin ligt op het westen.

Waar u ook kiest, u geniet altijd van veel ruimte en een heerlijke plek om buiten te leven.

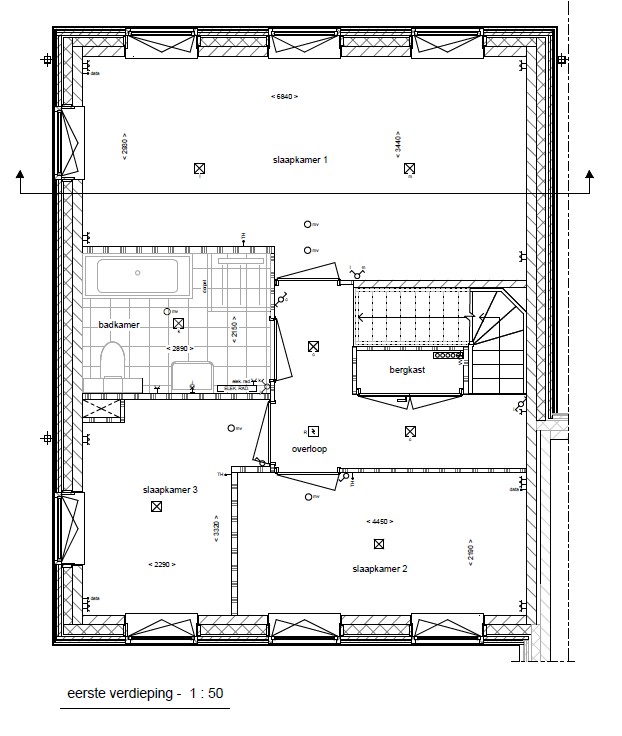
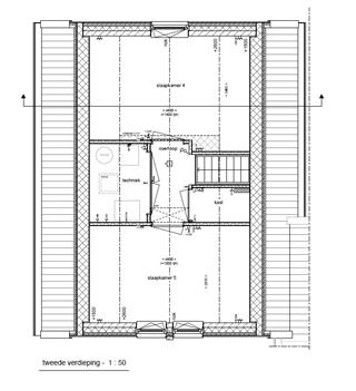
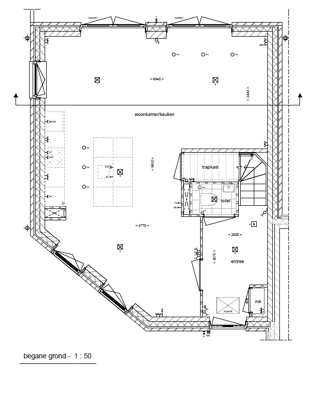
Basisindeling:
- Beukmaat 7,2m
- Woonkamer met 4 openslaande deuren naar de tuin
- Open keuken in het midden van het huis
- Trapkast
- Toilet
- Drie slaapkamers op de eerste verdieping
- Badkamer met douche, ligbad en toilet
- Bergkast
- Twee slaapkamers op de zolderverdieping
- Techniekruimte met bodemwarmtepomp, warmte terugwin ventilatie installatie, boiler en aansluiting voor wasmachine en droger
- Tuin voorzien van berging met sedumkruidendak
- Zonnepanelen

Optioneel:
- Achteruitbouw 1,2m en 1,8m mogelijk (met uitzondering van bnr. 15)
- Extra badkamer op de 2e verdieping
naar boven

Foto's

naar boven

Kenmerken

Vraagprijs € 994.250,-
Bouwvorm Nieuwbouw
Type hoekwoning, eengezinswoning
Woonoppervlakte 153 m²
Inhoud 400 m³
Bouwjaar 2026
Slaapkamers 6
Tuin achtertuin
Ligging Tuin oost
Garage geen garage
Schuur vrijstaand hout
Verwarming vloerverwarming geheel, warmtepomp
Energielabel A++++
naar boven

Herenhuis bouwnummer 15 (Bouwnr. 15) bekijken

Afspraak plannen?

Bekijk onze vestigingen
Elke dag tot 23.00 uur bereikbaar
Overzichtskaart van Nederland met alle vestigingen aangegeven
Plan nu bezichtiging Neem contact op
naar boven

Plan je route

Plan route
Voeg deze woning toe aan uw TomTom
Bakkerij Bank Busstation Café Gemeentehuis
Luchthaven Metro Museum Park Parkeerplaats
Restaurant School Sportclub Supermarkt Tankstation
Taxistandplaats Treinstation Universiteit Winkelcentrum Ziekenhuis