omslagfoto

Herenhuis bouwnummer 11 (Bouwnr. 11), Landsmeer € 1.008.000,- v.o.n. Nieuw Contact

Beschrijving

Wonen aan het water

Breekoever is een bijzonder nieuwbouwproject dat in drie fases wordt gerealiseerd. Met Breekoever3 wordt de laatste fase afgerond: een prachtig sluitstuk bestaande uit 8 royale herenhuizen en 10 levensloopbestendige woningen.

De woningen liggen in het gebied rondom de Kerkebreek, direct aan en bij het water. Hier komen eigentijdse woningen met een klassiek karakter, geïnspireerd op de historische Waterlandse bouwstijl en het dorpslint van Landsmeer. Iedere woning in Breekoever3 is uniek dankzij de variatie in gevelindelingen, kleuren, rabatdelen, makelaars en andere karakteristieke details.

Langs de fraai ingerichte kade geniet u straks van de levendigheid van wonen aan het water. Een plek waar bewoners elkaar ontmoeten, kinderen samen spelen in de natuurlijke speeltuin en waar u zelf tot rust komt met een kop koffie in de zon. Terwijl u uitkijkt op passerende sloepen en boten, kunt u er ook zelf voor kiezen het water op te gaan – misschien wel in uw eigen sloep.

De architectuur sluit naadloos aan bij de omgeving: rijkelijk gedetailleerde woningen die de sfeer van het oude Waterland ademen, maar dan in een hedendaagse uitvoering. Variatie binnen eenvoud, met oog voor klassieke details en een tijdloze uitstraling.

Dat is Breekoever3: de laatste fase van een uniek woonproject, en het kroonstuk van de buurt.

Herenhuis – Type A(sp) - bouwnummer 11

Aan de noord- en westzijde van Breekoever3 vindt u de statige herenhuizen van Type A. Vanuit de woonkamer en tuin kijkt u hier prachtig uit over het water van de Kerkebreek. Met een royaal woonoppervlak van ca. 158 m² en maar liefst 5 slaapkamers biedt deze woning volop ruimte voor het hele gezin.

De ligging van de tuin verschilt per bouwnummer:
- Bouwnummers 11 en 12: tuin op het oosten
- Bouwnummers 16, 17 en 18: tuin op het zuiden

Waar u ook kiest, u geniet altijd van veel ruimte en een heerlijke plek om buiten te leven.

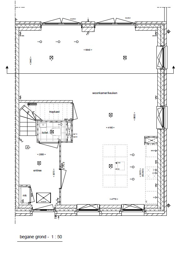
Basisindeling:
- Beukmaat: 7,2 meter
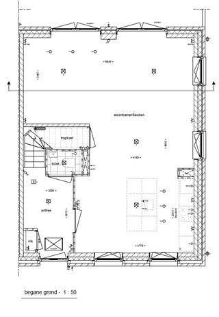
- Ruime woonkamer met 4 openslaande deuren naar de tuin
- Open keuken aan de voorzijde van het huis
- Trapkast
- Toilet
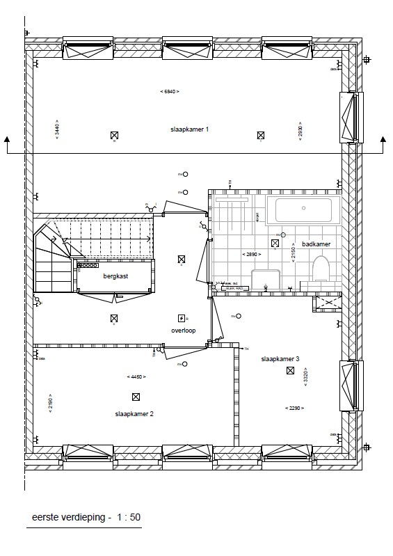
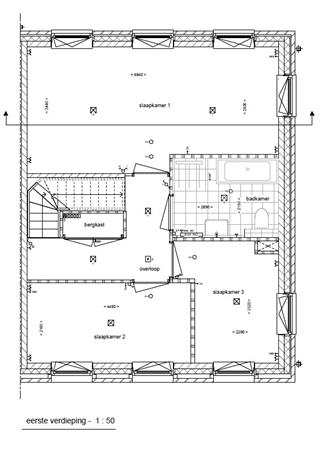
- Drie slaapkamers op de eerste verdieping
- Badkamer met douche, ligbad en toilet
- Bergkast
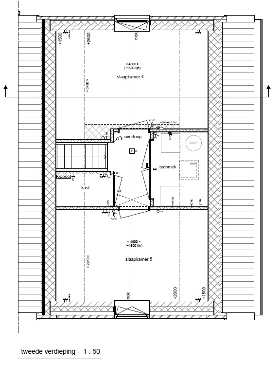
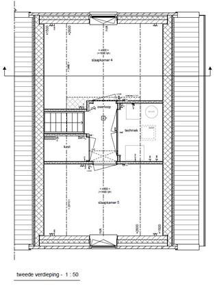
- Twee slaapkamers op de zolderverdieping
- Techniekruimte met bodemwarmtepomp, warmte-terugwinventilatie, boiler en aansluiting voor wasmachine/droger
- Tuin met berging voorzien van sedumkruidendak
- Zonnepanelen

Optioneel:
- Achteruitbouw van 1,2 meter of 1,8 meter mogelijk (m.u.v. bouwnummer 12)
- Extra badkamer op de tweede verdieping

Deze woning maakt deel uit van Breekoever fase 3. De verkoop van het project is gestart. Wij sluiten de inschrijving op maandag 13 oktober om 12:00 uur ‘s middags. Inschrijvingen na 13 oktober 12:00 uur ’s middags komen automatisch op de reservelijst.
naar boven

Foto's

naar boven

Kenmerken

Vraagprijs € 1.008.000,-
Bouwvorm Nieuwbouw
Type hoekwoning, eengezinswoning
Woonoppervlakte 158 m²
Inhoud 413 m³
Bouwjaar 2026
Slaapkamers 6
Tuin achtertuin, voortuin
Ligging Tuin oost
Garage geen garage
Schuur vrijstaand hout
Verwarming vloerverwarming geheel, warmtepomp
Energielabel A++++
naar boven

Herenhuis bouwnummer 11 (Bouwnr. 11) bekijken

Afspraak plannen?

Bekijk onze vestigingen
Elke dag tot 23.00 uur bereikbaar
Overzichtskaart van Nederland met alle vestigingen aangegeven
Plan nu bezichtiging Neem contact op
naar boven

Plan je route

Plan route
Voeg deze woning toe aan uw TomTom
Bakkerij Bank Busstation Café Gemeentehuis
Luchthaven Metro Museum Park Parkeerplaats
Restaurant School Sportclub Supermarkt Tankstation
Taxistandplaats Treinstation Universiteit Winkelcentrum Ziekenhuis