omslagfoto

Levensloopbestendige woning bouwnummer 3 (Bouwnr. 3), Landsmeer € 609.250,- v.o.n. Nieuw Contact

Beschrijving

Wonen bij het water

Breekoever is een bijzonder nieuwbouwproject dat in drie fases wordt gerealiseerd. Met Breekoever3 wordt de laatste fase afgerond: een prachtig sluitstuk bestaande uit 8 royale herenhuizen en 10 levensloopbestendige woningen.

De woningen liggen in het gebied rondom de Kerkebreek, direct aan en bij het water. Hier komen eigentijdse woningen met een klassiek karakter, geïnspireerd op de historische Waterlandse bouwstijl en het dorpslint van Landsmeer. Iedere woning in Breekoever3 is uniek dankzij de variatie in gevelindelingen, kleuren, rabatdelen, makelaars en andere karakteristieke details.

Langs de fraai ingerichte kade geniet u straks van de levendigheid van wonen aan het water. Een plek waar bewoners elkaar ontmoeten, kinderen samen spelen in de natuurlijke speeltuin en waar u zelf tot rust komt met een kop koffie in de zon. Terwijl u uitkijkt op passerende sloepen en boten, kunt u er ook zelf voor kiezen het water op te gaan – misschien wel in uw eigen sloep.

De architectuur sluit naadloos aan bij de omgeving: rijkelijk gedetailleerde woningen die de sfeer van het oude Waterland ademen, maar dan in een hedendaagse uitvoering. Variatie binnen eenvoud, met oog voor klassieke details en een tijdloze uitstraling.

Dat is Breekoever3: de laatste fase van een uniek woonproject, en het kroonstuk van de buurt.

Bouwnummer 3 - Levensloopbestendige woning – Type C(sp)

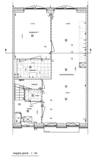
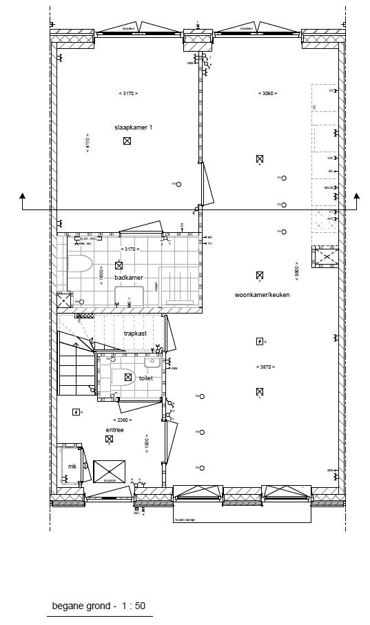
Wilt u graag wonen en slapen op de begane grond? Dan is Type C de ideale woning voor u. Alles bevindt zich binnen handbereik: een ruime slaapkamer, een complete badkamer en de mogelijkheid voor een wasmachineaansluiting op de begane grond. Voor gasten is er bovendien een separaat toilet aanwezig.

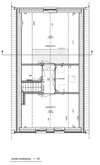
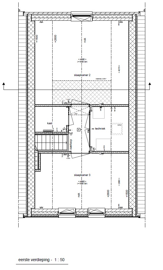
Op de eerste verdieping vindt u twee extra slaapkamers, met de optie om een tweede badkamer te realiseren. Hierdoor is de woning ook perfect geschikt voor logés of een gezinssituatie.

De ligging van de tuin verschilt per bouwnummer:
Bouwnummers 1 t/m 5: tuin op het westen
Bouwnummers 6 t/m 10: tuin op het noorden

Basisindeling:
- Beukmaat: 6,6 meter
- Woonkamer aan de voorzijde van het huis
- Open keuken met openslaande deuren naar de tuin
- Slaapkamer op de begane grond met openslaande deuren naar de tuin
- Badkamer met douche en toilet op de begane grond
- Trapkast
- Separaat gastentoilet
- Twee slaapkamers op de eerste verdieping
- Techniekruimte met bodemwarmtepomp, warmte-terugwinventilatie en aansluiting voor wasmachine/droger
- Tuin met berging voorzien van sedumkruidendak
- Zonnepanelen

Optioneel:
- Aansluiting voor wasmachine en droger op de begane grond
- Extra badkamer op de eerste verdieping

Deze woning maakt deel uit van Breekoever fase 3. De verkoop van het project is gestart. Wij sluiten de inschrijving op maandag 13 oktober om 12:00 uur ‘s middags. Inschrijvingen na 13 oktober 12:00 uur ’s middags komen automatisch op de reservelijst.
naar boven

Foto's

naar boven

Kenmerken

Vraagprijs € 609.250,-
Bouwvorm Nieuwbouw
Type tussenwoning, eengezinswoning
Woonoppervlakte 104 m²
Inhoud 265 m³
Bouwjaar 2026
Slaapkamers 3
Tuin achtertuin
Ligging Tuin west
Garage geen garage
Schuur vrijstaand hout
Verwarming vloerverwarming geheel, warmtepomp
Energielabel A++++
naar boven

Levensloopbestendige woning bouwnummer 3 (Bouwnr. 3) bekijken

Afspraak plannen?

Bekijk onze vestigingen
Elke dag tot 23.00 uur bereikbaar
Overzichtskaart van Nederland met alle vestigingen aangegeven
Plan nu bezichtiging Neem contact op
naar boven

Plan je route

Plan route
Voeg deze woning toe aan uw TomTom
Bakkerij Bank Busstation Café Gemeentehuis
Luchthaven Metro Museum Park Parkeerplaats
Restaurant School Sportclub Supermarkt Tankstation
Taxistandplaats Treinstation Universiteit Winkelcentrum Ziekenhuis