omslagfoto

Orchideelaan 24, Lelystad € 738.000,- v.o.n. Verkocht onder voorbehoud Inschrijven

Beschrijving

DE NOTENTUIN FASE 2 – VRIJSTAANDE WONING VAN CIRCA 187 M2 MET AANGEBOUWDE BERGING

HET PROJECT
De Notentuin wordt een nieuw buurt in Lelystads nieuwste wijk Warande. De stad is hier vlakbij, maar vooral de natuur springt in het oog. Hier woon je tussen twee parken in: het Elzenpark en het toekomstige Esdoornpark. Deze parkbossen worden met elkaar verbonden via een groene verbindingszone. De bouw van de eerste fase is afgerond en die van de tweede fase in volle gang. De prognose oplevering van fase 2 is vanaf eind 2025.

In fase 2 komen 16 woningen, verdeeld over een 4 vrijstaande villa's en 12 twee-onder-een-kapwoningen. De woningen van De Notentuin, zijn duidelijk familie van elkaar, maar zijn elk toch net weer even anders. Dat zorgt voor een gemêleerd straatbeeld en volop keuze. De bebouwing heeft een eigentijdse, landelijke architectuurstijl, bestaande uit woningen met zadeldaken of daarvan afgeleide dakvormen met lage gootaanzetten. Door toepassing van houten gevelbekleding, in combinatie met metselwerk ontstaat een gebied met een hoge architectonische kwaliteit. De nieuwe duurzame wijk heeft een kleinschalig karakter, passend bij de omliggende polder. Dat maakt De Notentuin dé plek voor starters, doorstromers en gezinnen. Drukke straten zul je er niet vinden. Gemak, ruimte en vrijheid staan voorop!

VRIJSTAANDE WONING MET AANGEBOUWDE BERGING
Ben je op zoek naar een vrijstaande woning met een grote aangebouwde berging van circa 14m2 ? Dan is deze vrijstaande woning echt iets voor jou. Deze fraaie woning heeft een woonoppervlakte van 187 m2, verdeeld over drie royale verdiepingen. Deze woning is ook voorzien van een uitbouw aan de achterzijde op de begane grond met 2,4 meter. Altijd al een slaapkamer met inloopkast willen hebben? Of een extra werk-, logeer- of hobbykamer op zolder? Het kan allemaal in de ruime woning met zij- en achteruitbouw. Er is parkeergelegenheid voor 2 auto’s op eigen terrein.

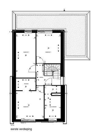
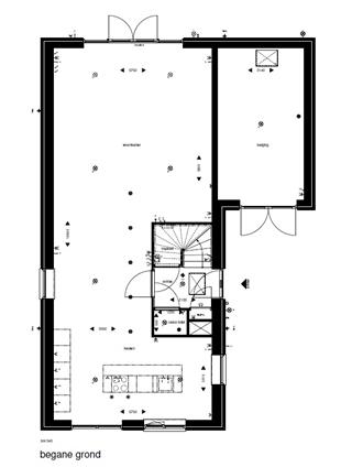
Indeling bouwnummer 43:
Zij-entree met toegang tot het toilet (casco oplevering) en de trap naar de eerste verdieping met daaronder een trapkast. Aan de voorzijde bevindt zich de keuken. Deze wordt casco opgeleverd, zodat na oplevering naar eigen wens de keuken kan worden geplaatst. Hierbij kan een groot eiland worden geplaatst met zowel het koken als het spoelen. Aan de muur kan een grote kastenwand komen met alle apparatuur. Aan de achterzijde is de zeer ruime UITGEBOUWDE woonkamer gelegen met openslaande deuren naar de achtertuin (NW). Naast de woonkamer bevindt zich de aangebouwde fietsenberging met dubbele deuren naar de voortuin.

Op de eerste verdieping bevinden zich een ruime en lichte overloop, 3 slaapkamers, waarbij de master bedroom aan de voorzijde is gelegen en is voorzien van een Frans balkon en een inloopkast. Naast deze slaapkamer ligt de ruime badkamer. Deze badkamer wordt casco opgeleverd, zodat je deze na oplevering naar eigen smaak kunt inrichten. De 2 andere slaapkamers bevinden zich aan de achterzijde.

De tweede verdieping heeft 2 ruime slaapkamers en een grote overloop. Op deze overloop bevinden zich de opstelplaats voor de wasmachine en droger. Ook is er nog een afgesloten technische ruimte.

Koopsom € 738.000,-- v.o.n.
De koopsom is compleet met de meerwerkopties: Uitbouw 2,4 meter begane grond achterzijde, trapkast, vervangen bergingsdeur door dubbele deur, installatie t.b.v. keuken met eilandopstelling, aansluiting afzuigkap uit vloer ipv uit plafond, casco toilet en badkamer, binnendeuren zonder bovenlicht, set van 2 buitenkranen, pakket extra wandcontactdozen, pakket loze leidingen, extra aardlekschakelaar, bedrade leiding tuinverlichting achtergevel en een loze leiding t.b.v. autolaadpunt

ENERGIEZUINIG
Je woning in De Notentuin is duurzaam en energiezuinig. Met dank aan stadsverwarming, comfortabele vloerverwarming op alle verdiepingen waarbij alle vertrekken een eigen thermostaat hebben en hoogwaardige en onderhoudsvriendelijke kunststof kozijnen met triple glas en screens. Dat zorgt ervoor dat je woning voldoet aan de eisen van Woningborg met betrekking tot de BENGnorm en energielabel A++ zullen hebben.

LOCATIE
In De Notentuin woon je overal dichtbij. Voor je dagelijkse boodschappen fiets je naar de supermarkt of bakker. Scholen, kinderopvang en sportgelegenheden vind je overal. Om fijn te wonen hoef je Lelystad niet uit. Wil je dat wel? Vanuit De Notentuin rijd je via de A6 zo richting Amsterdam, Utrecht of Zwolle. Ga je liever met het OV? Ook het treinstation ligt op fietsafstand. Waar je ook naartoe gaat, Lelystad is de ideale uitvalsbasis om te wonen.
naar boven

Foto's

naar boven

Kenmerken

Vraagprijs € 738.000,-
Bouwvorm Nieuwbouw
Type vrijstaande woning, villa
Ligging aan park, in woonwijk
Woonoppervlakte 187 m²
Perceeloppervlakte 386 m²
Inhoud 460 m³
Bouwjaar 2025
Slaapkamers 5
Tuin achtertuin, voortuin, zijtuin
Ligging Tuin noordwest
Garage geen garage
Schuur aangebouwd steen
Verwarming stadsverwarming, vloerverwarming geheel
Energielabel A++
naar boven

Orchideelaan 24 bekijken

Bekijk onze vestigingen
Elke dag tot 23.00 uur bereikbaar
Overzichtskaart van Nederland met alle vestigingen aangegeven
Plan nu bezichtiging Inschrijven
naar boven

Plan je route

Plan route
Voeg deze woning toe aan uw TomTom
Bakkerij Bank Busstation Café Gemeentehuis
Luchthaven Metro Museum Park Parkeerplaats
Restaurant School Sportclub Supermarkt Tankstation
Taxistandplaats Treinstation Universiteit Winkelcentrum Ziekenhuis