omslagfoto

Orchideelaan 28, Lelystad € 745.000,- v.o.n. Verkocht onder voorbehoud Plan nu je bezichtiging Plan een fysieke of virtuele afspraak

Beschrijving

RIANTE VRIJSTAAND VILLA VAN 204 M2 - DIRECT BESCHIKBAAR

DE NOTENTUIN
Dit is de laatste woning in het recent opgeleverde project De Notentuin in de wijk Warande in Lelystad. Deze woning is gelegen aan de rand van de wijk met vrij uitzicht aan de voorzijde. De woning is helemaal klaar, dus kan snel opgeleverd worden. BEL VOOR EEN BEZICHTIGING!
De stad is hier vlakbij, maar vooral de natuur springt in het oog. Hier woon je tussen twee parken in: het Elzenpark en het toekomstige Esdoornpark. Deze parkbossen worden met elkaar verbonden via een groene verbindingszone. De woningen van De Notentuin, zijn duidelijk familie van elkaar, maar zijn elk toch net weer even anders. Dat zorgt voor een gemêleerd straatbeeld. De bebouwing heeft een eigentijdse en landelijke architectuurstijl. Door toepassing van houten gevelbekleding, in combinatie met metselwerk ontstaat een gebied met een hoge architectonische kwaliteit. De nieuwe duurzame wijk heeft een kleinschalig karakter, passend bij de omliggende polder.

VRIJSTAANDE WONING MET ZIJ- EN ACHTERUITBOUW
Ben je op zoek naar een grote woonkamer? Dan is deze vrijstaande woning echt iets voor jou. Deze fraaie woning heeft een woonoppervlakte van maar liefst 204 m2, verdeeld over drie royale verdiepingen. Deze woning is zowel voorzien van een uitbouw aan de achterzijde en een zij uitbouw met extra woonkamer.
Altijd al een slaapkamer met inloopkast willen hebben? Of een extra werk-, logeer- of hobbykamer op zolder? Het kan allemaal in deze ruime woning. Er is parkeergelegenheid voor 2 auto’s op eigen terrein.

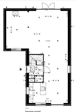
Indeling Orchideelaan 28:
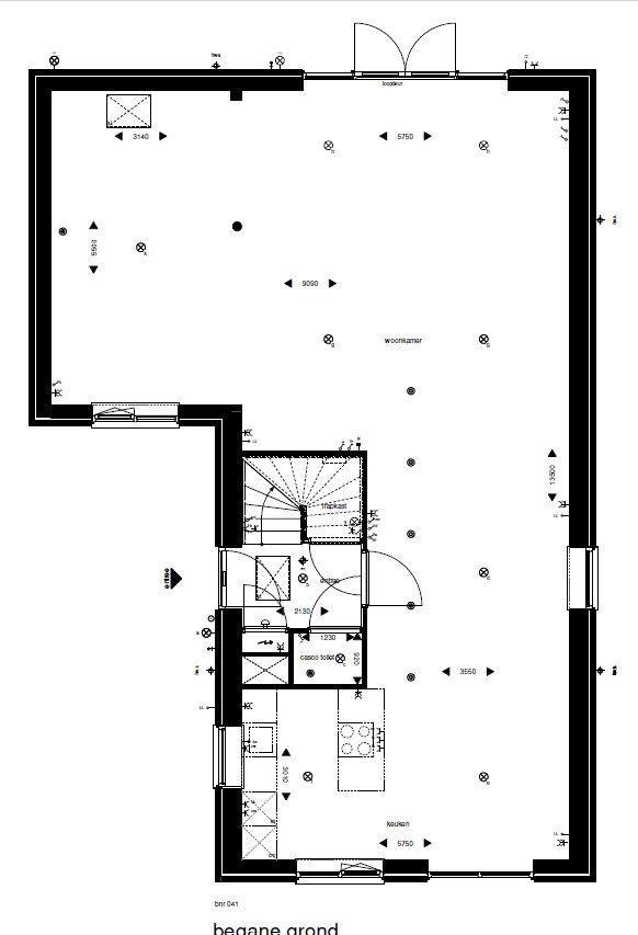
Zij-entree met toegang tot het toilet (casco oplevering) en de trap naar de eerste verdieping met daaronder een ruime trapkast. Aan de voorzijde bevindt zich de keuken. Deze wordt casco opgeleverd, zodat na oplevering naar eigen wens de keuken kan worden geplaatst. Aan de achterzijde is de zeer ruime woonkamer gelegen met openslaande deuren naar de achtertuin (NW). De achtergevel is bijna 9 meter breed en de zij-uitbouw is ideaal voor bijvoorbeeld een speel-, werk-, of tv-kamer. Ook heeft deze woning een ruime voortuin, waarbij 2 auto’s kunnen worden geparkeerd. Een fietsenberging bevindt zich in de achtertuin.

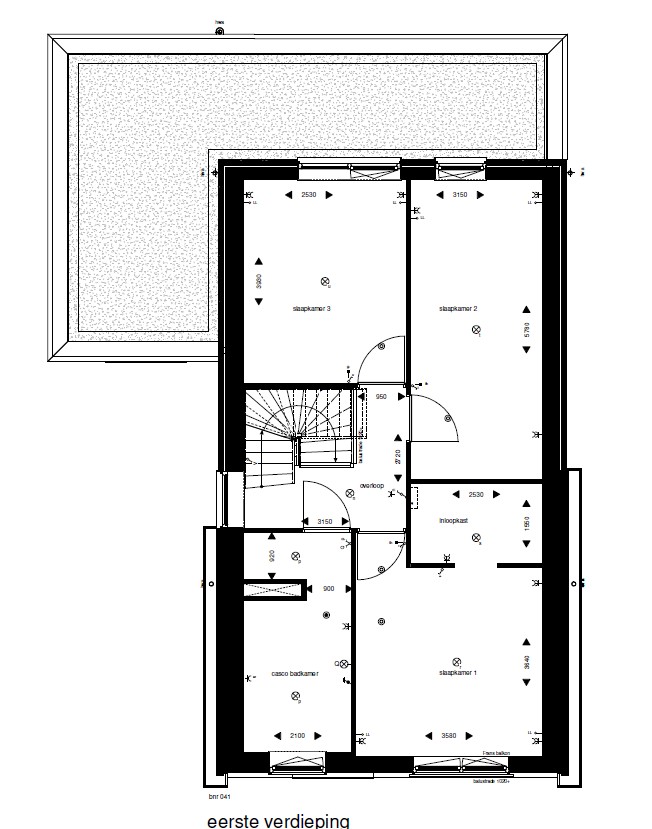
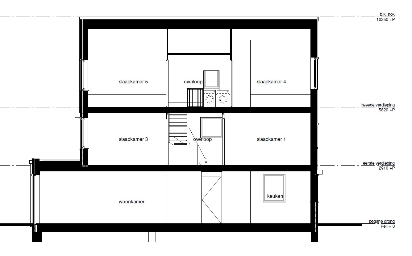
Op de eerste verdieping bevinden zich een ruime en lichte overloop, 3 slaapkamers, waarbij de master bedroom aan de voorzijde is gelegen en een Frans balkon heeft en tevens is voorzien van een inloopkast. Naast deze slaapkamer ligt de ruime badkamer. Deze badkamer wordt casco opgeleverd, zodat je ook deze ruimte helemaal naar eigen smaak kunt inrichten. De badkamer is groot genoeg voor een ligbad, inloopdouche, dubbele wastafel en het toilet kan netjes weggewerkt worden achter een muurtje. Aan de achterzijde bevinden zich de 2 andere slaapkamers.

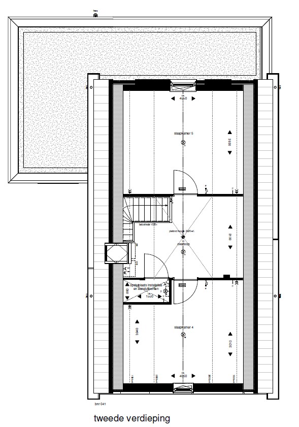
De tweede verdieping heeft 2 ruime slaapkamers en een grote overloop. Op deze overloop bevinden zich de opstelplaats voor de wasmachine en droger. Ook is er nog een afgesloten technische ruimte.

Koopsom € 745.000,-- v.o.n.
De koopsom is compleet met de meerwerkopties: Uitbouw 2,4m begane grond achterzijde, trapkast, vergroten woonkamer met losse berging in tuin, casco toilet en badkamer, binnendeuren zonder bovenlicht, set van 2 buitenkranen, pakket extra wandcontactdozen, pakket loze leidingen, extra aardlekschakelaar, bedrade leiding tuinverlichting achtergevel en een loze leiding t.b.v. autolaadpunt. Rente ingangsdatum 1 februari 2026.

ENERGIEZUINIG
De woning is duurzaam en energiezuinig. Met dank aan stadsverwarming, comfortabele vloerverwarming op alle verdiepingen waarbij alle vertrekken een eigen thermostaat hebben en hoogwaardige en onderhoudsvriendelijke kunststof kozijnen met triple glas en screens. Dat zorgt ervoor dat je woning voldoet aan de eisen van Woningborg met betrekking tot de BENGnorm en energielabel A++ zullen hebben.

LOCATIE
In De Notentuin woon je overal dichtbij. Voor je dagelijkse boodschappen fiets je naar de supermarkt of bakker. Scholen, kinderopvang en sportgelegenheden vind je overal. Om fijn te wonen hoef je Lelystad niet uit. Wil je dat wel? Vanuit De Notentuin rijd je via de A6 zo richting Amsterdam, Utrecht of Zwolle. Ga je liever met het OV? Ook het treinstation ligt op fietsafstand. Waar je ook naartoe gaat, Lelystad is de ideale uitvalsbasis om te wonen.
naar boven

Foto's

naar boven

Kenmerken

Vraagprijs € 745.000,-
Bouwvorm Nieuwbouw
Type vrijstaande woning, villa
Ligging in woonwijk, vrij uitzicht
Woonoppervlakte 204 m²
Perceeloppervlakte 386 m²
Inhoud 515 m³
Bouwjaar 2025
Slaapkamers 5
Tuin achtertuin, voortuin, zijtuin
Ligging Tuin noordwest
Garage geen garage
Schuur aangebouwd steen
Verwarming stadsverwarming, vloerverwarming geheel
Energielabel A++
naar boven

Orchideelaan 28 bekijken

Woning bezichtigen?

Bekijk onze vestigingen
Elke dag tot 23.00 uur bereikbaar
Overzichtskaart van Nederland met alle vestigingen aangegeven
Plan nu bezichtiging
naar boven

Plan je route

Plan route
Voeg deze woning toe aan uw TomTom
Bakkerij Bank Busstation Café Gemeentehuis
Luchthaven Metro Museum Park Parkeerplaats
Restaurant School Sportclub Supermarkt Tankstation
Taxistandplaats Treinstation Universiteit Winkelcentrum Ziekenhuis