omslagfoto

IJsvogel 4, Muiden € 1.275.000,- k.k. Nieuw Contact

naar boven

Foto's

naar boven

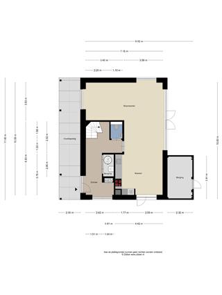
Kenmerken

Vraagprijs € 1.275.000,-
Bouwvorm Bestaande bouw
Type vrijstaande woning, villa
Ligging beschutte ligging, in bosrijke omgeving, in woonwijk
Woonoppervlakte 158 m²
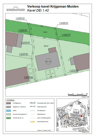
Perceeloppervlakte 439 m²
Inhoud 586 m³
Bouwjaar 2022
Slaapkamers 4
Tuin tuin rondom
Garage geen garage
Schuur aangebouwd steen
Verwarming vloerverwarming geheel, warmtepomp
Energielabel A+++
naar boven

Wat is er in de buurt

Wonen in Muiden

Muiden

In Muiden begint je dag met een gevoel van rust en ruimte, omringd door de charme van een historisch stadje en de nabijheid van het IJmeer. Dit stadje aan de rand van de Randstad biedt niet alleen een prachtige leefomgeving, maar ook de luxe van historie en natuur om je heen. Het iconische Muiderslot is het kloppende hart van de stad en herinnert je dagelijks aan de rijke geschiedenis van deze bijzondere plek. Wandel door de smalle straatjes, geniet van de charme van de oude gevels en ontdek de vele gezellige winkeltjes en horeca die Muiden rijk is.

Maar Muiden is meer dan een historische parel. Het is een stad die leeft en waar een warme gemeenschap je met open armen verwelkomt. In de haven kom je samen voor een drankje op het terras of een wandeling langs de bootjes. En voor de natuurliefhebbers is er altijd iets te ontdekken: van wandelroutes langs de dijken tot het uitgestrekte water van het IJmeer, waar je kunt varen, kanoën of gewoon kunt genieten van het uitzicht.

Met uitstekende voorzieningen zoals scholen, sportverenigingen en winkels, biedt Muiden het comfort dat je zoekt. Tegelijkertijd ligt Amsterdam om de hoek, waardoor je altijd dicht bij de dynamiek van de stad bent. Het maakt niet uit of je op zoek bent naar een plek om je gezin te laten opgroeien, of een plek om tot rust te komen – in Muiden vind je je nieuwe thuis.

naar boven

IJsvogel 4 bekijken

Afspraak plannen?

Bekijk onze vestigingen
Elke dag tot 23.00 uur bereikbaar
Overzichtskaart van Nederland met alle vestigingen aangegeven
Plan nu bezichtiging Neem contact op
naar boven

Plan je route

Plan route
Voeg deze woning toe aan uw TomTom
Bakkerij Bank Busstation Café Gemeentehuis
Luchthaven Metro Museum Park Parkeerplaats
Restaurant School Sportclub Supermarkt Tankstation
Taxistandplaats Treinstation Universiteit Winkelcentrum Ziekenhuis