omslagfoto

Bouwnummer 1004, Nijmegen € 334.500,- v.o.n. Verkocht onder voorbehoud Contact

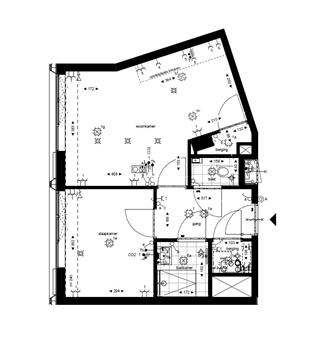
Beschrijving

Een verrassend ruim tweekamerappartement gelegen op het westen.
naar boven

Foto's

naar boven

Kenmerken

Vraagprijs € 334.500,-
Bouwvorm Nieuwbouw
Type Appartement
Woonoppervlakte 47 m²
Inhoud 141 m³
Bouwjaar 2027
Slaapkamers 1
Servicekosten € 141,- p/m
Garage parkeerplaats
Energielabel A++
naar boven

Bouwnummer 1004 bekijken

Afspraak plannen?

Bekijk onze vestigingen
Elke dag tot 23.00 uur bereikbaar
Overzichtskaart van Nederland met alle vestigingen aangegeven
Plan nu bezichtiging Neem contact op