omslagfoto

Bouwnummer 913, Nijmegen € 310.000,- v.o.n. Verkocht onder voorbehoud Contact

Beschrijving

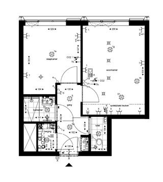
Een ruim tweekamerappartement gelegen op het noorden.
naar boven

Foto's

naar boven

Kenmerken

Vraagprijs € 310.000,-
Bouwvorm Nieuwbouw
Type Appartement
Woonoppervlakte 45 m²
Inhoud 135 m³
Bouwjaar 2027
Slaapkamers 1
Servicekosten € 135,- p/m
Garage parkeerplaats
Energielabel A++
naar boven

Bouwnummer 913 bekijken

Afspraak plannen?

Bekijk onze vestigingen
Elke dag tot 23.00 uur bereikbaar
Overzichtskaart van Nederland met alle vestigingen aangegeven
Plan nu bezichtiging Neem contact op