Noorderhoofdstraat 143

Noorderhoofdstraat 143 , Krommenie vanaf € 315.000,- 5 woningen geen woningen beschikbaar van 46 m² tot 89 m²

naar boven

Beschrijving

Verkoop gestart, Inschrijven kan tot 13 oktober a.s. 17:00 uur

Verkoop is gestart, inschrijven kan tot 13 oktober 17:00 uur.

Een hele generatie Krommenieërs kent deze plek aan de Noorderhoofdstraat. Hier werd gedanst, gesjanst, gekust, geflirt en gedist. Bezoekers smeedden hier vriendschappen for ever of voor effe, kregen er verkering en vonden zelfs de ware liefde. Obscure bandjes, bekende namen en ambitieuze volkszangers traden hier op. Een magische plek.

De naam leeft voort in het jaarlijkse festival, een feest voor Krommenie en inmiddels een traditie. De plek aan de Noorderhoofdstraat 143 krijgt een nieuwe functie: wonen. Vijf appartementen in een gebouw dat qua uitstraling perfect past in de historische setting. Dit wordt een monument van de toekomst.

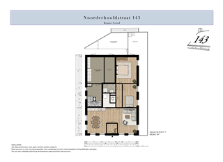
Het zogenoemde notarispand omvat drie bouwlagen. Vier appartementen worden verdeeld over de eerste en tweede etage. Op de begane grond komt een gezamenlijk gedeelte aan de achterzijde, de hoofdentree ligt aan de zijkant. De rest van de begane grond is bestemd voor een driekamerappartement met een eigen opgang. Alles gelijkvloers, heerlijk ruim en vooral heel veel lichtinval. De living met aansluitende (casco op te leveren) leefkeuken profiteert aan drie zijden van de hoge ramen met bovenlichten. De twee slaapkamers liggen hierachter, ook met de hoge ramen die het pand zo'n chique uitstraling geven.
Technische/ facilitaire ruimte, badkamer en separaat toilet (!) maken het woonplezier compleet. Want dáár ligt het comfort. Het hoge niveau wordt hier behaald door moderne installaties, fijne vloerverwarming en hoogwaardig sanitair.
Datzelfde geldt voor de andere vier appartementen. Allemaal uitgerust met twee slaapkamers en in afmeting variërend van 48 tot bijna 50 m2. Hier zijn de toiletten in de badkamers geplaatst, maar blijft voldoende ruimte over voor een inloopdouche en wastafel. De afwerking blijft even hoogwaardig, qua sanitair, kranen en tegelwerk. Ook de installaties voeren hun energiebesparende en comfortverhogende werk even goed uit, deze appartementen zijn gewoon slim ingedeeld!

De Noorderhoofdstraat is een gemoedelijke straat met diverse bebouwing, waarvan een groot deel Rijksmonumentaal. Geen hoogbouw, wel houtbouw. Winkels, ambachtslieden en woningen wisselen elkaar af. Sfeer dus. Typisch Zaans! Dit pand op huisnummer 143 past er met bestemming, vorm en materiaalgebruik perfect tussen en maakt de straat nog aantrekkelijker.
Als je richting het zuiden koerst, richting de eeuwenoude dorpskerk, verdicht het winkelbestand zich tot een keten van verswaren, delicatessen, kleding, juwelen, snuisterijen, antiek en curiosa. Hier vind je alles wat het leven leuk (horeca!) en shoppen bijzonder maakt. Sla de hoek om en vind een mega supermarkt. Het oude centrum van Krommenie is sowieso uitstekend voorzien.
Sport en spel is ook altijd dichtbij. Krommenie beschikt over een hypermodern binnen-/ buitenzwembad met sportaccommodaties. Een ommetje door het Agathepark, wandelen langs Krommeniedijk, rennen naar het buitengebied...
Omdat er tenslotte ook gewerkt moet worden, Krommenie is uitstekend bereikbaar per spoor, snelweg en streekvervoer. Zaandam behoort tot dezelfde gemeente, zo zijn ook stadse voorzieningen, zoals het Zaans Medisch Centrum direct onder handbereik. Projectwebsite: www.nieuwwonennederland.nl/nieuwbouw/krommenie/noorderhoofdstraat-143/15
naar boven

Foto's

naar boven

Kenmerken

Prijs van € 315.000,- tot € 425.000,-
Woonoppervlakte van 46 m² tot 89 m²
Inhoud van 143 m³ tot 280 m³
Aantal vrije kavels 0
naar boven

Belangstelling voor het project

Afspraak plannen?

Bekijk onze vestigingen
Elke dag tot 23.00 uur bereikbaar
Overzichtskaart van Nederland met alle vestigingen aangegeven
Plan afspraak
naar boven

Plan je route

Plan route
Bakkerij Bank Busstation Café Gemeentehuis
Luchthaven Metro Museum Park Parkeerplaats
Restaurant School Sportclub Supermarkt Tankstation
Taxistandplaats Treinstation Universiteit Winkelcentrum Ziekenhuis