omslagfoto

Kwadijkerpark (Bouwnr. 312), Purmerend € 840.000,- v.o.n. Inschrijven

Beschrijving

KWADIJKERPARK Type Plataan – Heerlijke twee-onder-een-kapwoning met 2 parkeerplaatsen op eigen terrein

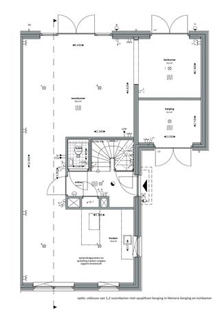
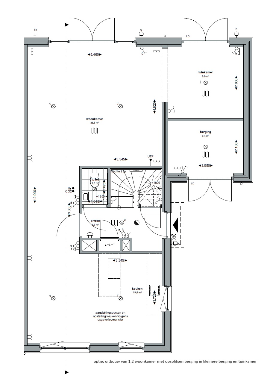
*MEERWERK ACTIE*: UITBOUW VAN 1,2 VAN DE WOONKAMER EN DE GROTE BERGING OPDELEN IN KLEINERE BERGING EN TUINKAMER MET OPENSLAANDE DEUREN VOOR € 25.000.
DEZE ACTIE IS BEPERKT GELDIG, DUS NEEM SNEL CONTACT OP MET HET VERKOOPTEAM

Na de succesvolle verkoop van de vorige fasen, start nu de verkoop van fase 3 van Kwadijkerpark. Dit is de laatste mogelijkheid om te wonen in deze duurzame, groene en sociaal betrokken wijk. Of je nu een jong gezin hebt of op zoek bent naar comfortabel wonen op latere leeftijd, hier vind je een thuis dat past bij jouw leven.

In deze slotfase worden 52 grondgebonden woningen gerealiseerd: 3 vrijstaande villa’s, 18 twee-onder-een-kapwoningen in verschillende types, 24 eengezinswoningen en 7 future living woningen. Allemaal ontworpen met oog voor comfort, duurzaamheid en toekomstbestendigheid.

De architectuur sluit naadloos aan op het Noord-Hollandse landschap. Met natuurlijke materialen, ingetogen kleuren en kenmerkende gevelvormen ademen de woningen de sfeer van dorpen als Broek in Waterland, Kwadijk en de Beemster. Zo ontstaat een eigentijdse wijk met een sterke regionale identiteit.

Wonen in Kwadijkerpark betekent leven te midden van volwassen bomen, waterpartijen en groenstroken met ruimte voor ontmoeting en verbondenheid. Autoluwe straatjes, hofjes en speelplekken maken het een veilige en prettige omgeving voor jong en oud. En dat alles op korte afstand van Amsterdam: de dynamiek van de stad is altijd dichtbij, terwijl je thuis geniet van rust, ruimte en natuur.

Type Plataan
Deze ruime twee-onder-een-kapwoning met zij-entree biedt volop leefruimte, comfort én mogelijkheden. Aan de voorzijde ligt de brede woonkeuken met ruimte voor een grote eettafel. Aan de tuinzijde vind je een royale woonkamer met openslaande deuren naar het terras. Zo lopen binnen en buiten naadloos in elkaar over. Tevens kun je de woonkamer nog voorzien van een uitbouw van 1,2 of 2,4 meter.

Daarnaast wordt er een speciale optie aangeboden waarbij de woonkamer wordt uitgebouwd met 1,2 meter en de aangebouwde berging wordt opgedeeld in een kleinere berging welke bereikbaar is via de voortuin en een tuinkamer met open slaande deuren naar de achtertuin. Deze tuinkamer van circa 9 m2 is ideaal voor een speel-, tv-, of werkkamer. Met deze optie vergroot je het woonoppervlakte met circa 15 m2! Deze optie is voor een aantrekkelijke prijs tijdelijk geldig, dus reageer snel!

Op de eerste verdieping bevinden zich drie slaapkamers, een complete badkamer met ligbad, douche en dubbele wastafel, en een separaat toilet. De tweede verdieping is al ingedeeld met twee kamers, die je naar eigen wens kunt gebruiken, bijvoorbeeld als extra slaapkamer, werkruimte of atelier.

Dankzij de zij-entree is de begane grond praktisch en ruimtelijk ingedeeld, met centraal de trapopgang en een binnen doorgang naar de aangebouwde berging. Ideaal voor fietsen of extra opslag. En parkeren doe je gewoon op eigen terrein: twee comfortabele plekken onder een solar carport die ook nog eens duurzame energie opwekt.

Daarnaast zijn er diverse indelingsvarianten mogelijk. Aan ruimte en mogelijkheden geen gebrek!
De woningen worden compleet opgeleverd met complete badkamer en een Siematic keuken. En uiteraard zijn de woningen zeer energiezuinig met o.a. vloerverwarming, triple glas en zonnepanelen.

Koopsom € 840.000,-- v.o.n.
naar boven

Foto's

naar boven

Kenmerken

Vraagprijs € 840.000,-
Bouwvorm Nieuwbouw
Type 2-onder-1-kapwoning, eengezinswoning
Ligging aan park, aan rustige weg, beschutte ligging, in woonwijk
Woonoppervlakte 160 m²
Inhoud 427 m³
Bouwjaar 2026
Slaapkamers 5
Tuin achtertuin, voortuin, zijtuin
Ligging Tuin zuid
Garage carport, geen garage
Schuur aangebouwd steen
Verwarming stadsverwarming, vloerverwarming gedeeltelijk
Energielabel A++
naar boven

Kwadijkerpark (Bouwnr. 312) bekijken

Bekijk onze vestigingen
Elke dag tot 23.00 uur bereikbaar
Overzichtskaart van Nederland met alle vestigingen aangegeven
Plan nu bezichtiging Inschrijven
naar boven

Plan je route

Plan route
Voeg deze woning toe aan uw TomTom
Bakkerij Bank Busstation Café Gemeentehuis
Luchthaven Metro Museum Park Parkeerplaats
Restaurant School Sportclub Supermarkt Tankstation
Taxistandplaats Treinstation Universiteit Winkelcentrum Ziekenhuis